3-room flat new, first floor, Pakoštane

€ 320,608
3
92 m²
2
1
No
Balcony

Note

Listing updated on 04/30/2026
Description

This description has been translated automatically and may not be accurate

reference: A1524

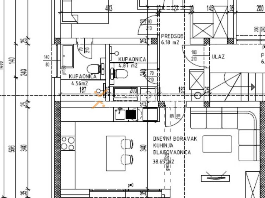
Apartment in Pakoštane 91,60 m, first floor, new building

For sale is a modern apartment in Pakoštane, located only 520 m from the sea and 650 m from the town center. It is situated on the first floor of a new building scheduled for completion in 2026. The total net area including additional spaces is 91,60 m², while the living area itself covers 89,10 m². A peaceful location adds special value to this property. 
The layout consists of a hallway, a bedroom, an additional bedroom with an en-suite bathroom, another bathroom, and a kitchen with a dining area connected to the living room, which has access to a loggia. The apartment also comes with one parking space.
When purchasing, no real estate transfer tax is paid.

Equipment

The construction is based on brick thermal blocks with a 10 cm styrofoam facade and PVC joinery with triple glazing, electric shutters, and mosquito nets. The floors are finished with a combination of tiles and parquet, while the entrance doors are security and fireproof. Electric underfloor heating is installed throughout the apartment, and three air conditioning units – in the living room and bedrooms – provide additional comfort. The apartment has a chimney, is connected to the sewage system, and the roof is new, flat, and concrete.
The expected energy certificate is A. This apartment represents an excellent opportunity for quality living or as an investment in close proximity to the sea and town center.

Location

Pakoštane is a beautiful village, situated in the heart of the Adriatic coast in a unique position between the sea and the Vrana Lake. In Pakoštane there is everything necessary for everyday life (shops, doctor, pharmacy, post office, school, etc.) and it is a perfect holiday destination. Surrounding area of four national parks Kornati, Krka, Paklenica and Plitvice lakes and two Nature Park Telašćica and Lake Vrana make Pakoštane even more unique and beautiful.

Additional info

If you have found this property elsewhere advertised at a lower price, that same price is valid with us!

https://www.emporia-realestate.com/property/apartment-a1524-pakostane/
Features
Type
Apartment
Contract
Sale
Floor
1 floor
Building floors
1
Lift
No
Surface
92 m²
Rooms
3
Bedrooms
2
Bathrooms
2
Furnished
No
Balcony
Yes
Garage, car parking
1 parking space
Air conditioning
Cold/hot
Other features
  • Security door
Price information
Price
€ 320,608
Price per m²
3,485 €/m²
Energy efficiency

Energy consumption

A

Discover every corner of the property
+6
Additional options

Contact the advertiser

Or