4-room flat Privlaka, Privlaka

€ 390,000
4
105 m²
2
1
No

Note

Listing updated on 04/21/2026
Description

This description has been translated automatically and may not be accurate

reference: 125-134

Flat Privlaka, 105,60m2

Kaiser Immobilien is putting on the market: Zadar, Privlaka: Modern apartment with sea view. 40m from the beach

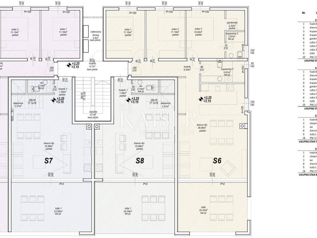
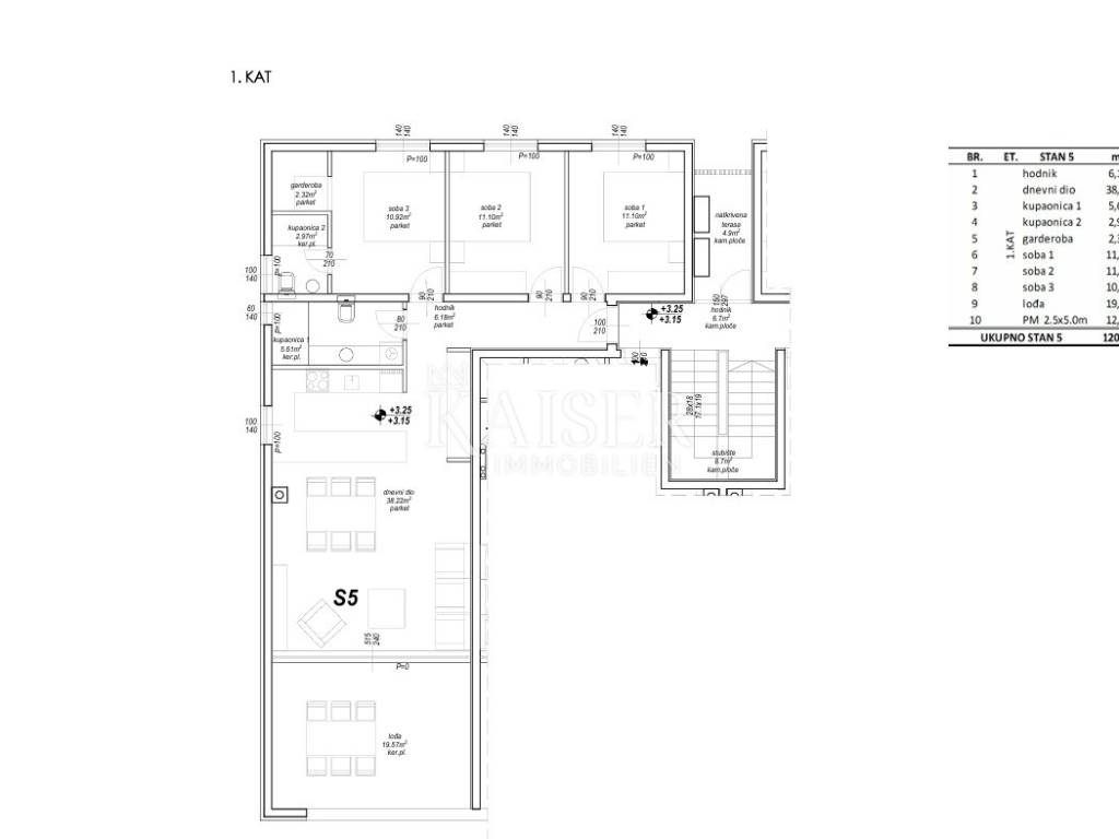
The apartment on the first floor of a modern residential building with a total of two floors, located in one of the quietest parts of Privlaka near Zadar, represents the perfect combination of luxury, functionality and an exceptional location by the sea. There are a total of four apartments on each floor, which ensures comfortable, private and quality living in a small, exclusive community.

The apartment is south-facing, extremely sunny throughout the day, with a beautiful sea view. It is located only 40 meters from the beach and promenade, which makes it an ideal choice for family life, vacation or a safe investment for tourist rental.
The apartment consists of a spacious living room with kitchen and dining room of 38.22 m², three bedrooms, two bathrooms and additional facilities that ensure a high level of comfort.

A special value is given by the spacious covered loggia of 19.57 m², ideal for relaxing and enjoying the Mediterranean ambiance.
The total calculated area of the apartment is 105.60 m², while the total actual area with all outdoor spaces is 120.49 m².
Privlaka is known for its long sandy beaches, well-maintained promenades and authentic Dalmatian lifestyle, while also providing excellent connections to Zadar and all major traffic routes. The location is ideal for those looking for peace by the sea, but want to be close to the city, culture and all amenities.

The contents of the apartment with square footage:
-hallway 6.18 m²
-living room with kitchen and dining room 38.22 m²
-bathroom 1 5.61 m²
-bathroom 2 2.97 m²
-wardrobe 2.32 m²
-bedroom 1 11.10 m²
-bedroom 2 11.10 m²
-bedroom 3 10.92 m²
-loggia 19.57 m² (calculated 14.68 m²)
-parking space 12.50 m² (calculated 2.50 m²)

Total calculated: 105.60 m²
Total actual: 120.49 m²

Other apartments are available in the same building, all with the same number of rooms, south orientation and sea view.
On the ground floor there are apartments for sale, each with a private garden, area:
-100 m²
-87.86 m²
-88.43 m²
-88.41 m²

On the first floor there are apartments with area:
-107.13 m²
And two duplex apartments with access to the roof terrace:
-129.99 m²
-131.06 m²

-Distances and connections:
-beach and promenade 40 m
-Zadar 18 km
-Nin 5 km
-Vir 10 km
-A1 motorway exit Zadar 25 km
-Zadar Airport 30 km
-Split 140 km
-Zagreb 285 km

The buyer's commission is 3% + VAT and is charged with the first legal act.
For additional information, photos or to arrange a viewing, please feel free to contact us.
Tel.: +385992510230
Email: marijana.papic@kaiser-immobilien.hr

ID CODE: 125-134

Marijana Papić
Agent posredovanja u prometu nekretnina
Mob: +385992510230, +385995677888
E-mail: marijana.papic@kaiser-immobilien.hr
www.kaiser-immobilien.hr
Features
Type
Apartment
Contract
Sale
Floor
1 floor
Building floors
2
Lift
No
Surface
105 m²
Rooms
4
Bedrooms
3
Bathrooms
2
Balcony
No
Terrace
No
Garage, car parking
1 parking space
Air conditioning
Independent, cold/hot
Price information
Price
€ 390,000
Price per m²
3,714 €/m²
Energy efficiency
  • Year of construction

    2025
  • Air conditioner

    Independent, cold/hot
  • Energy certification

    Not classifiable
Discover every corner of the property
+24
Additional options

Contact the advertiser

Or