4-room flat new, ground floor, Trogir

€ 195,000
4
71 m²
1
G

Note

Listing updated on 02/11/2026
Description

This description has been translated automatically and may not be accurate

reference: 6468-1

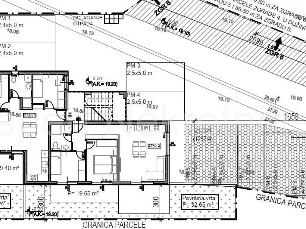
Trogir, two-bedroom apartment 57 m2 + garden 59 m2 in a new building in a smaller residential building with only 7 apartments. The apartment is located on the ground floor of the building, north-south-west-east oriented and consists of two bedrooms, bathroom, hallway, kitchen with dining room and living room, terrace (9m2) and garden (59 m2). The apartment has one outdoor parking space. Possible purchase of an additional parking space (10,000 euros).The building is located in a quiet and peaceful location only 900 m from the city center and near the Plodine shopping center. The start of work is planned for spring 09/2026 and the completion is planned 18 months after the start of construction. Quality equipment (inverter air conditioning, underfloor heating in the bathroom, six-chamber PVC joinery, quality ceramics. burglar-proof doors, thermal facade, ... etc.). Payment by construction phases.For more information and reservations, contact the agency.
Features
Type
Apartment
Contract
Sale
Floor
Ground floor
Surface
71 m²
Rooms
4
Bedrooms
2
Bathrooms
1
Air conditioning
Central, cold/hot
Other features
  • Security door
  • TV system with satellite dish
Price information
Price
€ 195,000
Price per m²
2,746 €/m²
Energy efficiency
  • Year of construction

    2026
  • Condition

    New / Under construction
  • Air conditioner

    Central, cold/hot
  • Energy certification

    Not classifiable
Discover every corner of the property
+10
Additional options

Contact the advertiser

Or