map icon

4-room flat new, third floor, Split

Split
€ 280,000
4
61 m²
1
3

Note

Listing updated on 02/16/2026
Description

This description has been translated automatically and may not be accurate

reference: 6494-1

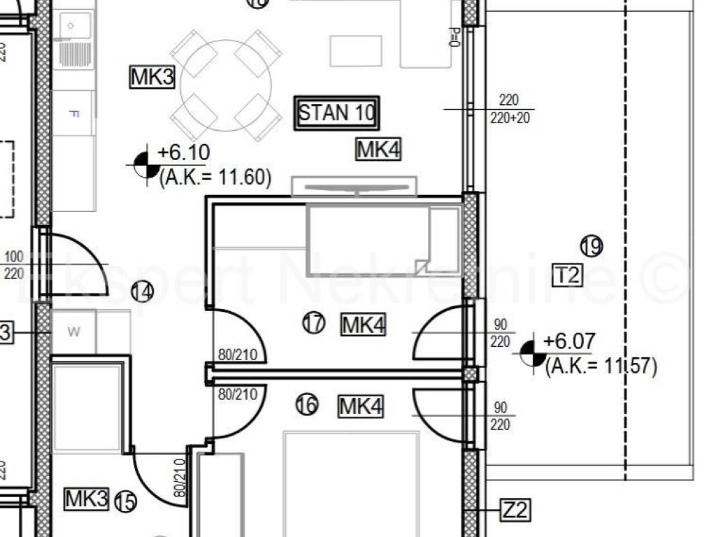
Čiovo, Slatine, two-bedroom apartment 61 m2 in a new building with a swimming pool. The apartment is located on the second floor of the building and the orientation of the apartment is east. It consists of a hallway, kitchen with dining room and living room, two bedrooms and a bathroom, a large terrace (16 m2). The building consists of 11 residential units and a shared swimming pool, and is only 70 m from the sea and 100 m from the beach. The apartment has one garage parking space. The building is in the phase of rough construction works and completion is planned for the summer of 2028.Each apartment is equipped with air conditioning in all areas and bathroom underfloor heating with the possibility of upgrading. The apartment also includes pre-installation for a massage tub. Excellent location in the center of town, close to the sea and beach and all amenities. Close to SPLIT AIRPORT (11 km), Trogir (7 km) and the City of Split (30 km)For reservations and more information, contact the agency.
Features
Type
Apartment
Contract
Sale
Floor
3 floor
Surface
61 m²
Rooms
4
Bedrooms
2
Bathrooms
1
Air conditioning
Central, cold/hot
Other features
  • Security door
  • Pool
Price information
Price
€ 280,000
Price per m²
4,590 €/m²
Energy efficiency
  • Year of construction

    2026
  • Condition

    New / Under construction
  • Air conditioner

    Central, cold/hot
  • Energy certification

    Not classifiable
Discover every corner of the property
+13
Additional options

Contact the advertiser

Or