3-room flat Privlaka, Privlaka

€ 225,000
3
78 m²
1
G
No
Terrace

Note

Listing updated on 03/18/2026
Description

This description has been translated automatically and may not be accurate

reference: 136

Flat Privlaka, 78m2

Two-bedroom apartment on the ground floor of a building - a few minutes from the sea and a well-maintained beach.

This apartment is ideal for those who want to enjoy being near the sea and all the amenities that Privlaka has to offer. Underfloor heating throughout the apartment!

When purchasing this property, the buyer does not pay real estate tax.

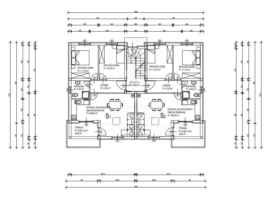
Apartment S1 consists of:
- hallway - area 5.20 m2,
- living room/kitchen with dining room - area 26.60 m2,
- bedroom - area 11.10 m2,
- bedroom - area 10.50 m2,
- bathroom - area 4.00 m2,
- terrace (9.90 m2),
- yard approximately 120 m2, and
- 1 outdoor parking space.

The total net area of ​​the apartment is 78 m2.

High-quality materials are used in the construction of the building in accordance with the highest construction standards.

Apartment equipment:
- Brick thermal block construction
- 10 cm polystyrene facade insulation
- Tile flooring
- High-quality PVC and ALU joinery with electric shutters and mosquito nets
- Air conditioning in the living room and bedrooms, a total of 3 units in the apartment
- Fire and burglar-proof entrance doors
- Underfloor heating throughout the apartment
- This property is expected to have an A+ energy certificate

The location of the apartment is extremely favorable, as it is located near the sea, shops, restaurants and all other necessary amenities. You can enjoy a walk to the beach or explore the beautiful nearby islands and nature.

The expected move-in date is 01.07.2026, which gives you the opportunity to plan your new home or investment in advance.

Privlaka, located near Zadar, delights with its long sandy beaches, crystal clear sea and relaxed Mediterranean atmosphere. This attractive location is increasingly sought after among buyers thanks to its ideal combination of peace, nature and proximity to urban amenities - a perfect choice for living, vacationing or a secure investment with excellent tourist potential.

ID CODE: 136

Katarina Šarić
Agent s licencom
Mob: +385 95 828 4392
E-mail: k.saric@ktmrealestate.hr
www.ktmrealestate.hr
Features
Type
Apartment
Contract
Sale
Floor
Ground floor
Building floors
2
Lift
No
Surface
78 m²
Rooms
3
Bedrooms
2
Bathrooms
1
Balcony
No
Terrace
Yes
Garage, car parking
1 parking space
Air conditioning
Independent, cold/hot
Other features
  • Alarm system
Price information
Price
€ 225,000
Price per m²
2,885 €/m²
Energy efficiency
  • Year of construction

    2026
  • Air conditioner

    Independent, cold/hot
  • Energy certification

    Not classifiable
Discover every corner of the property
+3
Additional options

Contact the advertiser

Or