1/12


2-room flat Donje Ražine, Šibenik, Šibenik
€ 175,000
Listing updated on 04/02/2026
Description
reference: RŽ-020
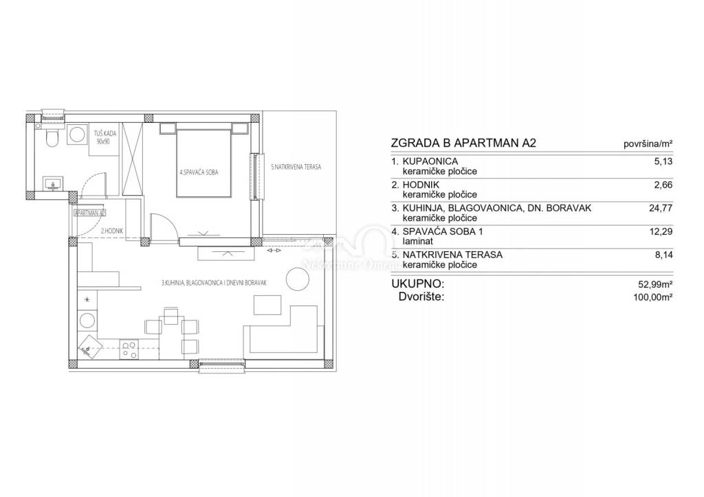
Flat Donje Ražine, Šibenik, 52,99m2
ID CODE: RŽ-020
Paolo Miškić
Viši savjetnik
Mob: +385 (0)99 210 2671
Tel: +385 (0)99 210 2671
E-mail: paolo@nekretnine-omega.hr
www.nekretnine-omega.hr
Features
- Type
- Apartment
- Contract
- Sale
- Floor
- Ground floor
- Building floors
- 2
- Lift
- No
- Surface
- 52 m²
- Rooms
- 2
- Bedrooms
- 1
- Bathrooms
- 1
- Balcony
- No
- Terrace
- Yes
- Garage, car parking
- 1 parking space
- Heating
- Independent, air heating
- Air conditioning
- Independent, cold/hot
Price information
- Price
- € 175,000
- Price per m²
- 3,365 €/m²
Energy efficiency
Floorplan

Discover every corner of the property
Additional options