2-room flat new, second floor, Vodice

€ 421,920
2
93 m²
2
2
Yes
Terrace

Note

Listing updated on 02/20/2026
Description

This description has been translated automatically and may not be accurate

reference: S2312

Vodice - Luxury apartment S9 with two bedrooms, elevator, sea view, second floor

VODICE – APARTMENT S9, SECOND FLOOR – MODERN NEW BUILDING WITH ELEVATOR, SEA VIEW – 93.76 m2

Apartment S9 on the second floor of a modern residential building with an elevator is for sale, located in a quiet and attractive location in Vodice, only 700 m from the beach and 750 m from the city center.

The building of contemporary design has a total of 10 apartments (basement + ground floor + 1st floor + 2nd floor) and is constructed with quality materials according to the latest construction standards. The planned start of construction is early 2025, with completion in summer 2026.

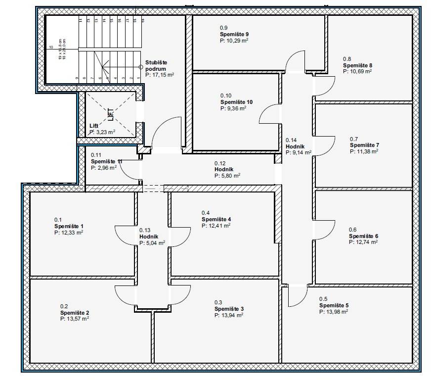
Apartment S9 on the 2nd floor, with a total area of 93.76 m2, consists of: entrance area, bathroom 1, storage room, laundry room, bathroom 2, hallway, two bedrooms, kitchen with dining area and living room, and a covered terrace of 12.55 m2. The apartment includes a storage room in the basement and one parking space.
PRICE: €421,920.00 (VAT included in the apartment price).

EQUIPMENT AND STANDARDS:

- Styrofoam facade insulation


- Anthracite-colored PVC joinery


- Electric motorized shutters


- Stone floor coverings


- Modern bathroom sanitary ware


- Underfloor heating


- Inverter air conditioning units in all rooms and living room


- Elevator in the building



ALL AVAILABLE APARTMENTS IN THE BUILDING:

GROUND FLOOR:

Apartment S1 with a total area of 74.78 m2 consists of entrance, WC/laundry room, hallway, bathroom, two bedrooms, kitchen with dining area and living room, and a partially covered terrace of 19.71 m2. The apartment includes a corresponding part of the garden, a storage room in the basement, and one parking space.
PRICE: €291,642.00 (VAT included in the apartment price).

Apartment S2 with a total area of 84.25 m2 consists of entrance area, WC/laundry room, hallway, bathroom, two bedrooms, kitchen with dining area and living room, and a covered terrace of 17.41 m2. The apartment includes a corresponding part of the garden, a storage room in the basement, and one parking space.
PRICE: €345,425.00 (VAT included in the apartment price).

Apartment S3 with a total area of 84.20 m2 consists of entrance, WC/laundry room, bathroom, hallway, two bedrooms, kitchen with dining area and living room, and a covered terrace of 15.91 m2. The apartment includes a storage room in the basement and one parking space.
PRICE: €336,800.00 (VAT included in the apartment price).

Apartment S4 with a total area of 83.73 m2 consists of entrance, hallway, WC/laundry room, bathroom, two bedrooms, kitchen with dining area and living room, and a covered terrace of 16.73 m2. The apartment includes a storage room in the basement and one parking space.
PRICE: €334,920.00 (VAT included in the apartment price).

1ST FLOOR:

Apartment S5 on the 1st floor with a total area of 120.89 m2 consists of entrance, hallway, WC/laundry room, two bedrooms, bathroom 1, bedroom with en-suite bathroom 2, kitchen with dining area and living room, and a covered terrace of 16.90 m2. The apartment includes a storage room in the basement and one covered parking space.
PRICE: €507,738.00 (VAT included in the apartment price).

Apartment S6 – SOLD

Apartment S7 on the 1st floor with a total area of 125.48 m2 consists of entrance, hallway, laundry room, bathroom 1, two bedrooms, bedroom with en-suite bathroom 2, kitchen with dining area and living room, and a covered terrace of 21.52 m2. The apartment includes a storage room in the basement and one parking space.
PRICE: €527,016.00 (VAT included in the apartment price).

2ND FLOOR:

Apartment S8 – SOLD

Apartment S9 on the 2nd floor with a total area of 93.76 m2 consists of entrance area, bathroom 1, storage room, laundry room, bathroom 2, hallway, two bedrooms, kitchen with dining area and living room, and a covered terrace of 12.55 m2. The apartment includes a storage room in the basement and one parking space.
PRICE: €421,920.00 (VAT included in the apartment price).

Apartment S10 on the 2nd floor with a total area of 125.50 m2 consists of entrance, hallway, laundry room, bathroom 1, two bedrooms, bedroom with en-suite bathroom 2, kitchen with dining area and living room, and a covered terrace of 17.20 m2. The apartment includes a storage room in the basement and one parking space.
PRICE: €564,750.00 (VAT included in the apartment price).
Features
Type
Apartment | Medium property class
Contract
Sale
Floor
2 floor
Building floors
2
Lift
Yes
Surface
93 m²
Rooms
2
Bedrooms
2
Bathrooms
2
Balcony
No
Terrace
Yes
Heating
Independent, floor heating
Air conditioning
Independent
View
Sea
Other features
  • Security door
Price information
Price
€ 421,920
Price per m²
4,537 €/m²
Energy efficiency
  • Year of construction

    2026
  • Condition

    New / Under construction
  • Heating

    Independent, floor heating
  • Air conditioner

    Independent
Floorplan
Discover every corner of the property
+12
Additional options

Contact the advertiser

Or