4-room flat Vodice, Vodice

€ 443,149
4
119 m²
2
2
No
Balcony
Terrace

Note

Listing updated on 04/08/2026
Description

This description has been translated automatically and may not be accurate

reference: A-685-S5

VODICE, new, 2nd floor + roof terrace, 450 m from the beach, sea view, garage, storage room

VODICE - For sale a modern apartment on two floors, with a roof terrace and panoramic sea views, only 450 m from the beach!

The property is located in a quiet environment, in an attractive location, 450 m from the famous city beach (Blue Beach) and 950 m from the city center. Nearby is a newly renovated promenade that connects the city of Vodice and the town of Tribunj.

A new residential building with a total of 5 residential units is under construction. The building has 4 floors: ground floor + 1st floor + 2nd floor + roof terrace. The modern-looking building is being built with quality materials and will be equipped according to the latest construction standards. Among the equipment we highlight: EPS facade 10 cm, PVC exterior joinery white color Gaelan, roller shutters with electric lifts, triple-layer glass, sliding walls, modern bathroom fixtures, quality ceramics, laminate in the bedrooms, electric underfloor heating in the bathrooms, kitchen and living room, air conditioners in the bedrooms and living room, EV charging connection in the garage, electricity and water connection on the roof terraces and drain for the summer kitchen, pre-installation for solar panels on pergolas (if desired - for an additional fee). Planned completion date and move-in - summer 2026.

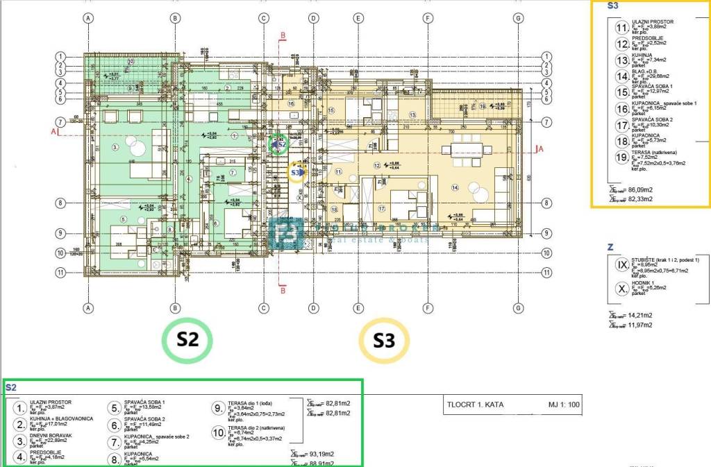
Apartment S5 is located on the 2nd and 3rd floors with a total usable area of ​​119.77 m2 and consists of an entrance hall, hallway, bathroom, two bedrooms, one of which has its own bathroom, kitchen with dining room, living room with access to a covered terrace of 7.52 m2. An internal shared staircase leads to the 3rd floor (roof terrace) of 94.91 m2 (net 24.33 m2) with a panoramic view of the sea. The apartment has a storage room on the ground floor of 6.05 m2 and a garage of 15.73 m2.

The price is €443,149.

OTHER AVAILABLE IN THE BUILDING

GROUND FLOOR

Apartment S1 - SOLD

1ST FLOOR

Apartment S2 is located on the 1st floor, with a total usable area of ​​96.26 m2 and consists of an entrance hall, hallway, bathroom, two bedrooms, one of which has its own bathroom, kitchen with dining room, living room with access to a covered terrace of 10.38 m2 with a view of the sea. The apartment has a storage room on the ground floor of 2.45 m2 and two outdoor parking spaces in the building's courtyard. The price is €356,152.

Apartment S3 - SOLD

2ND FLOOR + ROOF TERRACE

Apartment S4 is located on the 2nd and 3rd floors, with a total usable area of ​​126.58 m2 and consists of an entrance hall, hallway, bathroom, three bedrooms, one of which has an en-suite bathroom, kitchen with dining room, living room with access to a covered terrace of 6.73 m2 with a sea view. An internal shared staircase leads to the 3rd floor (roof terrace) with an area of ​​102.17 m2 (net 25.54 m2) and a panoramic view of the sea. The apartment has a storage room on the ground floor with an area of ​​2.69 m2 and a garage with an area of ​​15.73 m2. The price is €468,346.

For more information, please contact us by phone or e-mail.

ID CODE: A-685-S5

Fidius Broker
Voditelj ureda
Mob: ++385 91 3375522
Tel: ++385 91 5135719
E-mail: info@fidiusbroker.hr
www.fidiusbroker.hr
Features
Type
Apartment
Contract
Sale
Floor
2 floor
Building floors
3
Lift
No
Surface
119 m²
Rooms
4
Bedrooms
3
Bathrooms
2
Balcony
Yes
Terrace
Yes
Garage, car parking
1 in garage/box, 1 parking space
Heating
Independent, air heating
Air conditioning
Independent, cold/hot
Price information
Price
€ 443,149
Price per m²
3,724 €/m²
Energy efficiency
  • Year of construction

    2026
  • Heating

    Independent, air heating
  • Air conditioner

    Independent, cold/hot
  • Energy certification

    Not classifiable
Floorplan
Discover every corner of the property
+29
Additional options

Contact the advertiser

Or