Apartment excellent condition, first floor, Bačvice - Firule, Split

€ 950,000
5+
115 m²
2
1
Terrace
Furnished

Note

Listing updated on 04/30/2026
Description

This description has been translated automatically and may not be accurate

reference: 15816-1

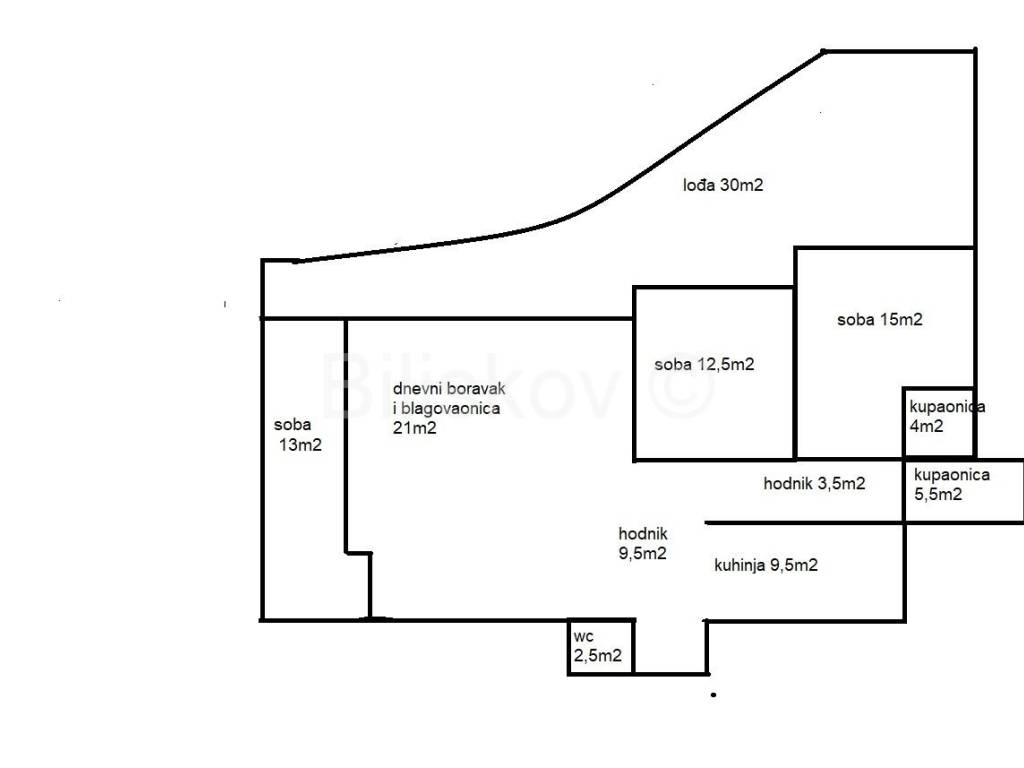
Split, Firule, comfortable three-bedroom apartment of 95m2 with a 32m2 terrace on the 1st floor of a residential building. The entire apartment is south-facing and all rooms open onto the terrace.
It consists of 3 bedrooms, a kitchen with a dining room and a living room, 2 bathrooms (one in the largest bedroom), a guest toilet and a large terrace. On the terrace there is a jacuzzi with two deck chairs and a table with 6 chairs. All rooms are air-conditioned and the outdoor units are hidden from view in a closet that also serves as a small storage room.
The apartment was completely renovated and newly furnished in 2025, and is ready to move in very quickly.
It is located in a great location, two minutes from the sea and the promenade that leads to the city center and numerous beaches.
www.biliskov.com ID:15816-1
If you want to know more, you can talk to Anđelka Ramljak.
Features
Type
Apartment
Contract
Sale
Floor
1 floor
Surface
115 m²
Rooms
5+
Bedrooms
3
Bathrooms
2
Furnished
Yes
Terrace
Yes
Air conditioning
Central, cold/hot
Other features
  • Security door
Price information
Price
€ 950,000
Price per m²
8,261 €/m²
Energy efficiency
  • Year of construction

    1996
  • Condition

    Excellent / Refurbished
  • Air conditioner

    Central, cold/hot
  • Energy certification

    Not classifiable
Discover every corner of the property
+33
Additional options

Contact the advertiser

Or