2-room flat Cres, Cres

€ 410,000
2
75 m²
3
Terrace

Note

Listing updated on 03/03/2026
Description

reference: EUROVILLA-267991

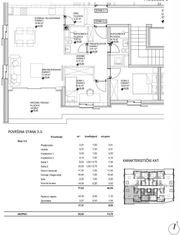
Grad Cres, Centar, trosoban stan s krovnom terasom na odličnoj lokaciji, NOVOGRADNJA.U samom centru grada Cresa, na svega 100 metara od mora i u neposrednoj blizini povijesne gradske jezgre, smješten je ovaj atraktivan i moderno koncipiran trosoban stan s krovnom terasom, unutar suvremene poslovno-stambene zgrade visoke kvalitete gradnje.Stan se nalazi na trećem katu zgrade te ima ukupnu obračunsku površinu 74,78 m², dok stvarna površina stana s pripadajućim dijelovima iznosi 95,00 m². Sastoji se od ulaznog prostora i hodnika, dvije kupaonice, dvije spavaće sobe, dnevnog boravka povezanog s kuhinjom i blagovaonicom, dodatne ostave te krovne terase površine 14,09 m², koja predstavlja posebnu vrijednost ove nekretnine i pruža ugodan prostor za boravak na otvorenom.Stanu pripada i spremište u suterenu te parkirno mjesto u podzemnoj garaži, što predstavlja značajnu prednost u centru grada.Stan je projektiran s naglaskom na funkcionalnost i udobnost, a opremljen je kvalitetnim materijalima i modernim sanitarijama, podnim grijanjem, PVC stolarijom te griljama za zaštitu od sunca.Zgrada se prostire kroz pet etaža i obuhvaća podzemnu garažu u suterenu, tri poslovna prostora u prizemlju te ukupno 14 stanova raspoređenih na tri gornje etaže. Nalazi se na iznimnoj lokaciji u samom srcu Cresa, okružena trgovinama, restoranima, kafićima, kulturnim i zabavnim sadržajima, uz odličnu dostupnost javnog prijevoza.Ova nekretnina predstavlja izvrsnu priliku za stanovanje, ali i kao investicija za turistički ili dugoročni najam, zahvaljujući svojoj lokaciji, kvaliteti gradnje i funkcionalnom rasporedu.Za dodatne informacije slobodno nas kontaktirajte!... Više na eurovilla.hr, ID: 267991
If you want to know more, you can talk to Borna Radović.
Features
Type
Apartment
Contract
Sale
Floor
3
Surface
75 m²
Rooms
2
Bedrooms
2
Terrace
Yes
Surface detail

Residential

Floor
3
Surface
75.0 m²
Coefficient
100%
Surface type
Main
Commercial area
75.0 m²
Price information
Price
€ 410,000
Price per m²
5,467 €/m²
Energy efficiency
  • Condition

    New / Under construction
  • Energy certification

    Exempt
Floorplan
Discover every corner of the property
+6
Advertiser
agent male

Borna Radović

agency card
Additional options

Contact the advertiser

Or
agent male

Borna Radović