1-bedroom flat Pakoštane, Pakoštane

€ 200,000
1
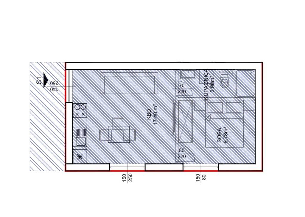
46 m²
G
Terrace

Note

Listing updated on 03/03/2026
Description

reference: EUROVILLA-503298

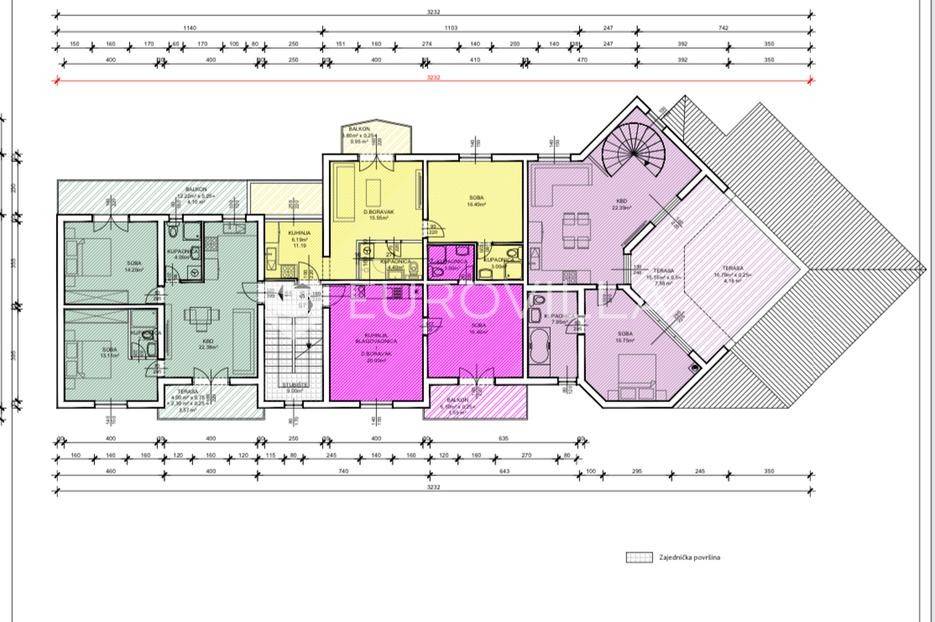
Apartman S1 u prizemlju objekta ukupne neto korisne površine od 46 m2 sastoji se od dnevnog prostora površine 17 m2 (kuhinja, blagovaonica i dnevni boravak) spavaće sobe površina 9 m2, kupaonice površine 4 m2, natkrivene terase površine 7 m2 i vrta površine 90 m2.Apartman je orijentacije sjeveroistok.U skrivenom dragulju sjeverne Dalmacije, mjestu Pakoštane smještenom u samom središtu Jadranske obale i jedinstvenom položaju između obale i Vranskog jezera gradi se objekt s 9 apartmana na pješačkoj udaljenosti od plaže od 250 m. Zahvaljujući izoliranoj poziciji unutar zelenog pojasa lokacija objekata pruža izuzetan mir.Svi apartmani će biti opremljeni klima uređajima u spavaćim sobama i dnevnom prostoru. U kupaonicama će biti postavljeno podno grijanje a podne obloge će biti od laminat parketa ili keramičkih pločica. Stakla će biti troslojna a vanjska izolacija će biti od 10 cm stiropora.Svi apartmani će imati osigurano parking mjesto, ostavu i zajednički bazen.Način plaćanja je 50 % prilikom potpisa predugovora a ostatak u fazama radova.Predviđeni završetak objekta je u 12 mjesecu 2025 godine a useljenje do 5 mjeseca 2026 godine.Malo o lokaciji: Pakoštane na zapadu graniče s mjestom Biograd na moru a okružuju ga četiri nacionalna parka (Kornati, Krka, Paklenica i Plitvička jezera) i dva parka prirode (Telašćica i Vransko Jezero).Prva spominjanja mjesta Pakoštane datiraju iz 15 stoljeća, dok se u rimsko doba na mjestu današnjih Pakoštana nalazila luka rimskog grada Asseriae zbog čega mjesto obiluje povijesnim ostacima iz Rimskog doba. Osim samog mjesta, i u okolici Pakoštana se nalaze mjesta povijesnog značenja zbog čega je ovaj kraj izuzetno zahvalan za ljubitelje povijesnih znamenitosti.U samom mjestu se nalaze prekrasne plaže a u akvatoriju mjesta se nalazi 5 malih otočića zbog čega je ovo mjesto zahvalno za ljubitelje brodskih izleta.Ako želite osjetiti izvorni duh dalmatinskog mjesta a istovremeno ste pustolov željan istraživanja ljepota prirode i bogate prošlosti, Pakoštane su pravi izbor za Vas.Dodatne informacije - udaljenosti od važnijih lokacija:More: 250 m / Plaža: 250 m / Zadar 33 km / Zračna luka 27 kmKupovina: 1000 m / restoran: 650 m / ljekarna 1000 m / centar mjesta 1000 mZa sve ostale informacije stojim na raspolaganju.... Više na eurovilla.hr, ID: 503298
If you want to know more, you can talk to Domagoj Zekan.
Features
Type
Apartment
Contract
Sale
Floor
Ground floor
Surface
46 m²
Rooms
1
Bedrooms
1
Terrace
Yes
Surface detail

Residential

Floor
Ground floor
Surface
46.3 m²
Coefficient
100%
Surface type
Main
Commercial area
46.3 m²
Price information
Price
€ 200,000
Price per m²
4,348 €/m²
Energy efficiency
  • Condition

    New / Under construction
  • Energy certification

    Exempt
Floorplan
Discover every corner of the property
+20
Advertiser
agent male

Domagoj Zekan

agency card
Additional options

Contact the advertiser

Or
agent male

Domagoj Zekan