1-bedroom flat Vruljica, Voštarnica - Poluotok, Zadar

€ 248,215
1
45 m²
2

Note

Listing updated on 03/03/2026
Description

reference: EUROVILLA-719726

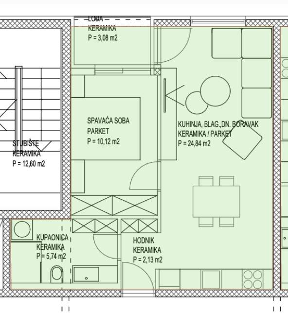
U ugodnom i mirnom dijelu naselja Vruljica, na iznimno traženoj gradskoj lokaciji u blizini mora i svih sadržaja, smješten je ovaj funkcionalno projektiran jednosoban stan u modernoj novogradnji s liftom.Stan se nalazi na 2. katu zgrade.Zatvoreni stambeni dio iznosi 42,82 m², dok lođa ima površinu 3,08 m², što ukupno čini 45,90 m² korisne površine.Obračunska površina prema etažnom elaboratu iznosi 45,13 m². Raspored i površine prostorija:Dnevni boravak, kuhinja i blagovaonica: 24,76 m²Spavaća soba: 10,12 m²Kupaonica: 5,74 m²Hodnik: 2,20 m²Stan je idealan kao gradski stan za stanovanje ili kao kvalitetna investicija za dugoročni ili turistički najam.Zgrada se gradi prema visokim standardima moderne novogradnje u energetskom razredu A+, s sustavom grijanja i hlađenja, podnim grijanjem u svim prostorijama, aluminijskom stolarijom s troslojnim staklima, električnim roletama i komarnicima, te kvalitetnim završnim obradama.Stanu pripada jedno vanjsko parkirno mjesto i spremište, uključeno u oglašenu cijenu.Očekivani završetak gradnje: ljeto 2026. godine.Projekt ima pravomoćnu građevinsku dozvolu.Za prezentaciju i obilazak lokacije stojimo na raspolaganju.... Više na eurovilla.hr, ID: 719726
If you want to know more, you can talk to Marina Marijan.
Features
Type
Apartment
Contract
Sale
Floor
2
Surface
45 m²
Rooms
1
Bedrooms
1
Surface detail

Residential

Floor
2
Surface
45.1 m²
Coefficient
100%
Surface type
Main
Commercial area
45.1 m²
Price information
Price
€ 248,215
Price per m²
5,516 €/m²
Energy efficiency
  • Energy certification

    Exempt
Floorplan
Discover every corner of the property
+8
Advertiser
agent male

Marina Marijan

agency card
Additional options

Contact the advertiser

Or
agent male

Marina Marijan