2-room flat Okrug Gornji, Okrug

€ 280,000
2
65 m²
2
Balcony

Note

Listing updated on 03/03/2026
Description

reference: EUROVILLA-817848

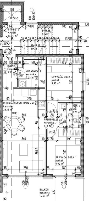
Čiovo, Okrug Gornji, dvosoban stan položen na drugoj etaži modernog objekta s bazenom i liftom, u izgradnji.Stan S6 se sastoji od ulaznog hodnika, dvije spavaće sobe, dvije kupaonice, kuhinje s blagovaonicom i dnevnog boravka s izlazom na natkriveni balkon površine 14, 63 m2. Površina zatvorenog stambenog dijela iznosi 55 m2, a ukupna 65 m2.U cijenu je uračunato jedno vanjsko nenatkriveno parkirno mjesto.Objekt je smještan na južnoj strani Čiova, na odličnoj lokaciji, jako blizu uređenih plaža, restorana, trgovina,….Za sva ostala pitanja, stojim na raspolaganju.... Više na eurovilla.hr, ID: 817848
If you want to know more, you can talk to Josipa Serdarušić.
Features
Type
Apartment
Contract
Sale
Floor
2
Surface
65 m²
Rooms
2
Bedrooms
2
Balcony
Yes
Surface detail

Residential

Floor
2
Surface
65.0 m²
Coefficient
100%
Surface type
Main
Commercial area
65.0 m²
Price information
Price
€ 280,000
Price per m²
4,308 €/m²
Energy efficiency
  • Condition

    New / Under construction
  • Energy certification

    Exempt
Floorplan
Discover every corner of the property
+8
Advertiser
agent male

Josipa Serdarušić

agency card
Additional options

Contact the advertiser

Or
agent male

Josipa Serdarušić