3-room flat Kožino, Petrčane - Kožino, Zadar

€ 1,042,000
3
176 m²
2
Balcony

Note

Listing updated on 03/25/2026
Description

reference: EUROVILLA-851625

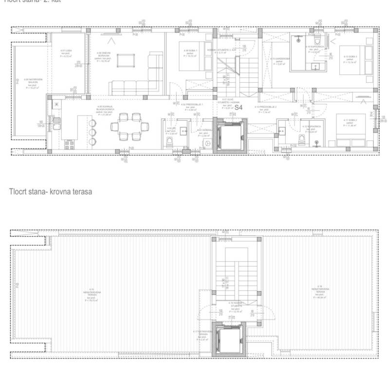
U prodaji je ekskluzivni luksuzni penthouse S4, smješten na drugom katu moderne novogradnje u mirnom i atraktivnom dijelu Kožina kraj Zadra, na svega 200 metara od mora. Ova nekretnina nudi visoku razinu privatnosti, prostranost i vrhunsku opremu, te predstavlja idealan izbor za one koji traže luksuzan životni prostor ili premium investiciju na Jadranu.Penthouse ima ukupnu neto korisnu površinu od 176,66 m² te je pažljivo osmišljen kako bi pružio maksimalnu funkcionalnost i komfor. Sastoji se od ulaza, stubišta, hodnika i predsoblja, prostranog open space prostora kuhinje i dnevnog boravka, tri spavaće sobe, svaka s vlastitom kupaonicom, dok master spavaća soba dodatno raspolaže garderobom. Stan ima natkriveni balkon i lođu, a posebnu vrijednost daje impresivna krovna terasa površine 126 m² s panoramskim pogledom, idealna za uživanje tijekom cijele godine.Zgrada se gradi prema najvišim standardima gradnje i opreme. Planirani rok useljenja je kraj 2026. godine, a objekt je projektiran u energetskom razredu A+. Fasada je izvedena s ETICS toplinskom izolacijom debljine 10 cm. Grijanje i hlađenje osigurano je putem Mitsubishi Heavy Industries klima uređaja, uz električno podno grijanje. Vanjska stolarija je aluminijska s troslojnim IZO staklom. Sanitarna oprema predviđena je renomiranih proizvođača LAUFEN, HANSGROHE i GEBERIT, dok su keramičke pločice talijanske proizvodnje, prve klase. Unutarnja vrata su bijela, lakirana, s ispunom od cjevaste iverice, a ulazna vrata protuprovalna, protupožarna i zvučno izolirana. Ugrađen je videoportafon, dok Schindler dizalo omogućuje direktan pristup do samog stana, što dodatno naglašava ekskluzivnost ove nekretnine.Ovaj penthouse predstavlja rijetku priliku za kupnju luksuzne nekretnine na jednoj od najtraženijih lokacija u okolici Zadra.Za više informacija i dogovor oko razgledavanja, stojimo vam na raspolaganju.... Više na eurovilla.hr, ID: 851625
If you want to know more, you can talk to Filip Luštica .
Features
Type
Penthouse
Contract
Sale
Floor
2
Surface
176 m²
Rooms
3
Bedrooms
3
Balcony
Yes
Surface detail

Residential

Floor
2
Surface
176.7 m²
Coefficient
100%
Surface type
Main
Commercial area
176.7 m²
Price information
Price
€ 1,042,000
Price per m²
5,920 €/m²
Energy efficiency
  • Condition

    New / Under construction
  • Energy certification

    Exempt
Floorplan
Discover every corner of the property
+13
Advertiser
agent male

Filip Luštica

agency card
Additional options

Contact the advertiser

Or
agent male

Filip Luštica