2-room flat Medulin, Stari Medulin, Medulin

€ 327,000
2
59 m²
1
G
No

Note

Listing updated on 03/05/2026
Description

This description has been translated automatically and may not be accurate

reference: ID06159

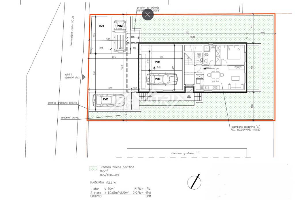
Medulin, ground floor apartment with garden, sea front

Located in a quiet and prestigious part of Medulin, in the Mukalba area, this apartment represents a rare opportunity to live by the sea. Its first-row position ensures direct access to beaches and local amenities, making it ideal for vacation, permanent residence, or investment.

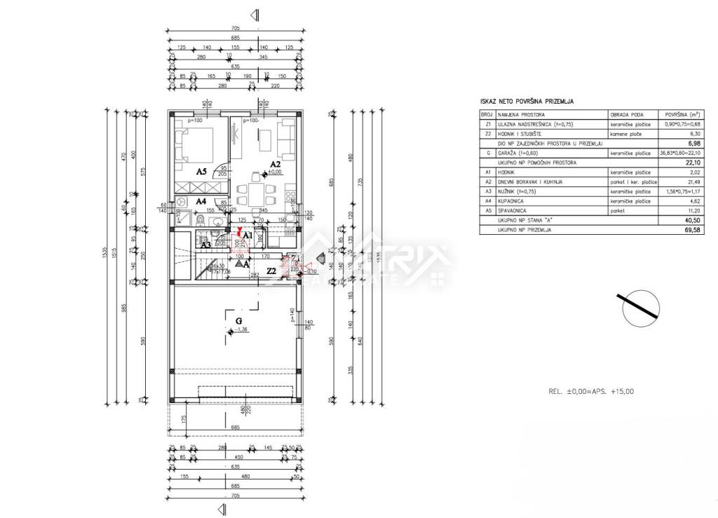
GROUND FLOOR APARTMENT (40.89 m²) with a total net usable area of 59.50 m² includes a living room with kitchen, bedroom, bathroom, storage room, terrace, and a private garden of 140 m². The apartment comes with one outdoor parking space and is sold as a turnkey property, fully equipped with ceramics and sanitary installations, ready for immediate occupancy, while furniture is left to the new owner’s choice.

The apartment is equipped with high-quality PVC windows with triple 4S glazing, underfloor water heating, electric shutters, mosquito nets, lacquered interior doors, and a security entrance door. The building’s entrance door is made of high-quality aluminum, and the façade and flat roof provide excellent thermal insulation. Air conditioning in every room ensures a comfortable living environment all year round.

Completion of construction is expected in spring 2026, and ownership is clear 1/1, allowing for a fast and simple purchase. This property represents an outstanding opportunity for buyers who want to enjoy life by the sea, with a private garden and a fully equipped apartment, or for investors seeking an exclusive first-row property.

ID CODE: ID06159

Matrix Real Estate
Voditelj ureda
Mob: +385 52 417 779
Tel: +385 52 417 779
E-mail: info@matrixrealestate.hr
https://matrixrealestate.hr/

Ivana Mohorović
Suradnik u procesu obuke
Mob: +385 95 370 44 46
Tel: +385 52 417 779
E-mail: ivana@matrixrealestate.hr
https://matrixrealestate.hr/
Features
Type
Apartment
Contract
Sale
Floor
Ground floor
Building floors
2
Lift
No
Surface
59 m²
Rooms
2
Bedrooms
1
Bathrooms
1
Balcony
No
Terrace
No
Garage, car parking
1 parking space
Air conditioning
Independent, cold/hot
Price information
Price
€ 327,000
Price per m²
5,542 €/m²
Energy efficiency
  • Year of construction

    2025
  • Air conditioner

    Independent, cold/hot
  • Energy certification

    Not classifiable
Floorplan
Discover every corner of the property
+24
Additional options

Contact the advertiser

Or