3-room flat Vodice, Vodice

€ 592,000
3
109 m²
1
2
No
Balcony
Terrace

Note

Listing updated on 03/09/2026
Description

This description has been translated automatically and may not be accurate

reference: A-682-S3

VODICE, new, luxury penthouse, 2nd floor, 2nd row to the sea, panoramic view

VODICE - In an exclusive location, 2nd row to the sea, a luxurious penthouse with 2 bedrooms and a terrace with a panoramic sea view is for sale!

A beautiful pebble beach is located just 30 m away, directly in front of the building, and the center is 950 m away.

The construction of a small residential building with a total of 3 luxury apartments has begun. The building will have three floors: ground floor + 1st floor + 2nd floor. High-quality materials and equipment that follow modern standards and current trends will be used in the construction, with modern design and carefully selected elements so that the property meets the highest criteria of modern housing. Among the equipment, we highlight: 10 cm polystyrene facade, security doors, top-quality ceramics, exterior joinery (triple-layer glass), electric roller shutters, mosquito nets, glass railings, underfloor heating, air conditioning in all rooms and modern sanitary equipment. This project has been carefully designed to combine sophisticated design and functionality. The planned completion of construction is 12/2026.

Apartment S3 is located on the 2nd floor of the building with a total net usable area of ​​109.59 m² (with 2 parking spaces). It consists of an entrance hall, kitchen with pantry, dining room, spacious living room (37.75 m²) with access to a covered loggia of 15.40 m² with a panoramic sea view, two bedrooms, bathroom, separate toilet, two covered loggias. The apartment has two parking spaces.

Price: €592,000 (VAT included - the buyer is exempt from paying 3% real estate tax).

OTHER AVAILABLE IN THE BUILDING

GROUND FLOOR

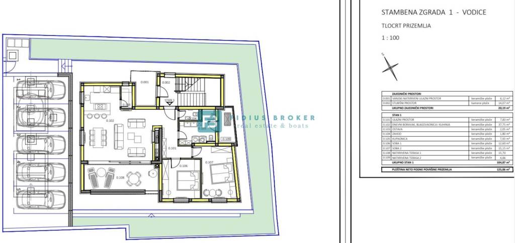
Apartment S1 is located on the ground floor of the building with a total net area of ​​104.87 m² (with 1 parking space and a garden of approx. 65 m²). It consists of an entrance hall, kitchen with pantry, dining room, spacious living room (37.75 m²) with access to a covered loggia of 15.70 m², and two bedrooms, bathroom, separate toilet, covered loggia of 4.06 m². The apartment has one parking space. The price is €546,000 (VAT included - the buyer is exempt from paying 3% real estate tax).

1ST FLOOR

Apartment S2 is located on the 1st floor of a building with a total area of ​​109.59 m² (with 2 parking spaces). It consists of an entrance hall, kitchen with pantry, dining room, spacious living room (37.75 m²) with access to a covered loggia of 15.40 m² with a beautiful view of the sea, and two bedrooms, bathroom, separate toilet, two covered loggias. The apartment has two parking spaces. The price is €586,000 (VAT included - the buyer is exempt from paying 3% real estate tax).

Vodice is one of the most attractive tourist destinations on the Adriatic, located on the coast of the Šibenik Bay. It is known for its rich history, picturesque streets and traditional Dalmatian architecture. This area offers a rich selection of restaurants with authentic Dalmatian cuisine, cafes, shops and marinas, along with beautiful beaches and promenades that stretch along the sea. Vodice is located near the Krka and Kornati national parks, and is also known for its diverse cultural events. It is an ideal place to live and vacation all year round.

Contact us for more information via email or phone!

ID CODE: A-682-S3

Fidius Broker
Voditelj ureda
Mob: ++385 91 3375522
Tel: ++385 91 5135719
E-mail: info@fidiusbroker.hr
www.fidiusbroker.hr
Features
Type
Apartment
Contract
Sale
Floor
2 floor
Building floors
2
Lift
No
Surface
109 m²
Rooms
3
Bedrooms
2
Bathrooms
1
Balcony
Yes
Terrace
Yes
Garage, car parking
2 parking space
Heating
Independent, air heating
Air conditioning
Independent, cold/hot
Price information
Price
€ 592,000
Price per m²
5,431 €/m²
Energy efficiency
  • Heating

    Independent, air heating
  • Air conditioner

    Independent, cold/hot
  • Energy certification

    Not classifiable
Floorplan
Additional options

Contact the advertiser

Or