3-room flat Mandre, Kolan, Kolan

€ 516,555
3
84 m²
1
1
No
Balcony

Note

Listing updated on 04/02/2026
Description

This description has been translated automatically and may not be accurate

reference: 7531

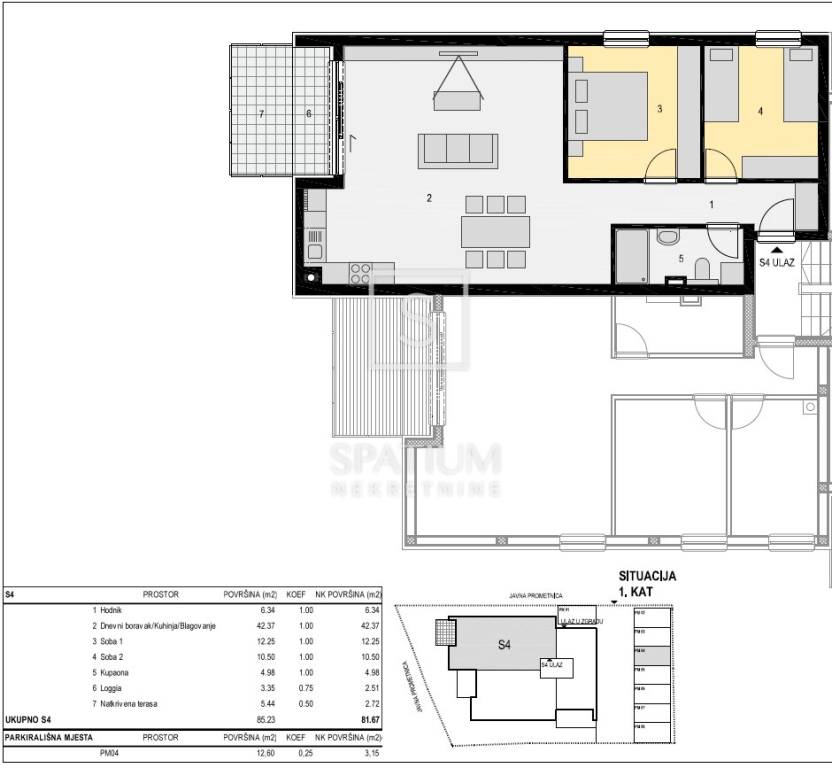
Flat Mandre, Kolan, 48,84m2

PAG, MANDRE, offers an apartment S2 located on the first floor of a modern new building with a total of eight residential units.
The project has been carefully designed and arranged over three floors – ground floor, first and second floor – with special attention paid to the orientation of the apartments so that each of them has an open view of the sea. The building is located in one of the most attractive locations in Mandre, just a few steps from the sea and in the immediate vicinity of all important amenities such as shops, restaurants and bars.

The apartment consists of two spacious bedrooms, a bathroom with underfloor heating and an airy living area that combines the kitchen, dining room and living room. The living area opens onto a covered terrace with a view of the sea.

Top-quality materials and equipment were used in the construction and furnishing to ensure a high level of comfort and quality of living. Schüco aluminum joinery was installed, ceramic tiles from the renowned manufacturer Marazzi were installed throughout the building, while the sanitary facilities are equipped with high-end faucets from the Hansgrohe brand. The apartment has underfloor heating with WiFi control, electric shutters and high-class air conditioning in every room. The entire building is equipped with video surveillance for additional security.

The apartment also comes with its own parking space.
Estimated completion and move-in: early 2026.

Mandre is a tourist center of the Kolan Municipality, located on the southern side of the island of Pag with a beautiful view of Silba and Olib and the islets of Maun and Škrda, which are abundant in bays and beautiful beaches. Located right on the coast, Mandre boasts 3 kilometers of pebble beaches.

For all other information, please contact us with confidence.

Sanjin Latinčić
licensed agent
+385 91 28 99 599
sanjin@spatium.hr

Goran Božić
licensed agent
+385 98 186 5413
goran@spatium.hr

Spatium nekretnine
+385 51 272 903
info@spatium.hr

ID CODE: 7531

Sanjin Latinčić
Agent s licencom
Mob: +385 91 289 9599
Tel: +385 51 272 903
E-mail: sanjin@spatium.hr
www.spatium.hr

Goran Božić
Agent s licencom
Mob: +385 98 186 5413
Tel: +385 51 272 903
E-mail: goran@spatium.hr
www.spatium.hr
Features
Type
Apartment
Contract
Sale
Floor
1 floor
Building floors
2
Lift
No
Surface
84 m²
Rooms
3
Bedrooms
2
Bathrooms
1
Balcony
Yes
Terrace
No
Garage, car parking
1 parking space
Air conditioning
Independent, cold/hot
Other features
  • Alarm system
Price information
Price
€ 516,555
Price per m²
6,149 €/m²
Energy efficiency
  • Year of construction

    2026
  • Air conditioner

    Independent, cold/hot
  • Energy certification

    Not classifiable
Floorplan
Discover every corner of the property
+2
Additional options

Contact the advertiser

Or