Building land for Sale

€ 600,000
978 m²

Note

Listing updated on 03/19/2026
Description

This description has been translated automatically and may not be accurate

reference: ID-1854

Omišalj, island Krk, building land 970 m2, building permit, 2nd row to the sea, view, for sale

Omišalj, island Krk, building land, second row to the sea.

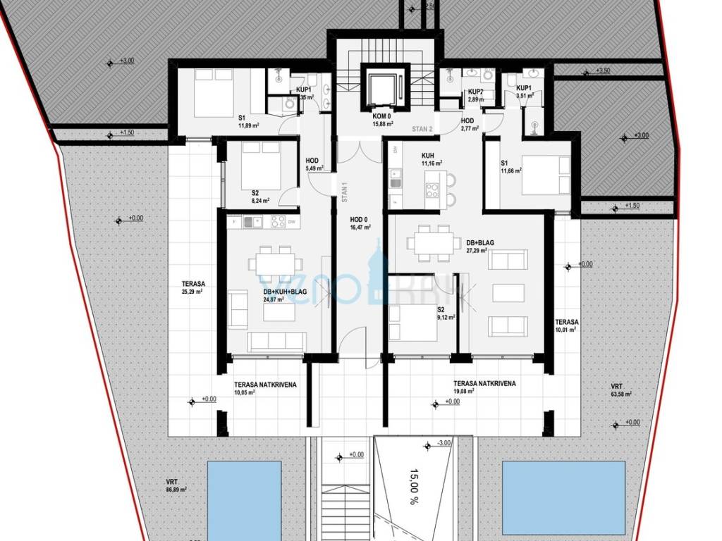
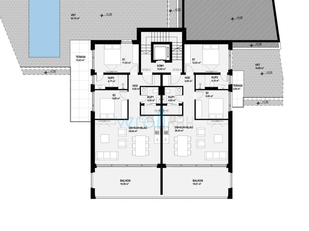
In an excellent location, in the second row to the sea, we are selling building land with an area of 978 m2 with an obtained building permit and a complete project for 6 residential units, a swimming pool, and an underground garage, courtyard, and outdoor parking.
All infrastructure is on the land.

The sea and the beach are 50m away.

We invite you to view and explore the potential this plot offers for various investment or private purposes.
If you want to know more, you can talk to Roman Doles.
Features
Contract
Sale
Type
Building land
Surface
978 m²
Other features
  • Electricity connection
  • Sewer connection
  • Water connection
Price information
Price
€ 600,000
Price per m²
613 €/m²
Discover every corner of the property
+7
Additional options

Contact the advertiser

Or