Single-family detached house Grad Krk, Centar, Krk

€ 970,000
5
170 m²
3
No

Note

Listing updated on 03/20/2026
Description

This description has been translated automatically and may not be accurate

reference: 5756

Krk - new Mediterranean style house

The island of Krk, wider surroundings of the city of Krk, a new Mediterranean-style house is for sale
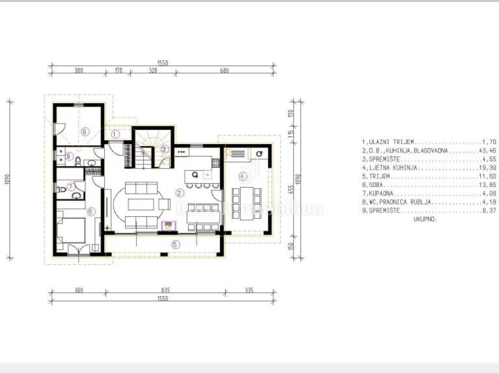
This detached house with a pool consists of a ground floor and an upper floor. On the ground floor there is an entrance area, bedrooms with bathrooms, kitchen with dining room and living room, guest toilet and storage room. The living room leads to a covered terrace with a summer kitchen.
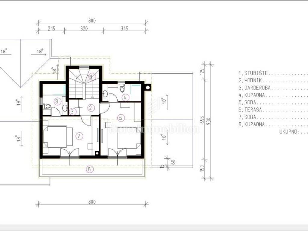
Upstairs there are two bedrooms, each with its own bathroom and a terrace with a sea view.
The house is under construction, quality floor coverings and equipment are planned, air conditioning in all rooms, an indoor and outdoor fireplace, as well as landscaping of the garden with a swimming pool, all according to turnkey system.
The expected completion of construction works is 05/2025.

For any information or to arrange a viewing, feel free to contact us at +385994440660 or visit our office in Malinska at Dubašljanska 111.

Provizija agencije za kupca iznosi 3% + PDV i plaća se u slučaju kupovine nekretnine kod zaključenja kupoprodajnog Ugovora.

ID CODE: 5756

Euro Immobilien d.o.o.
Mob: 00385 (0)99 444 0660
Tel: +385 51 220 024
E-mail: info@euro-immobilien.hr
www.euro-immobilien.hr
Features
Type
Single-family detached house
Contract
Sale
Building floors
1
Lift
No
Surface
170 m²
Rooms
5
Bedrooms
4
Bathrooms
3
Balcony
No
Terrace
No
Garage, car parking
2 parking space
Heating
Independent, air heating
Air conditioning
Independent, cold/hot
Price information
Price
€ 970,000
Price per m²
5,706 €/m²
Energy efficiency
  • Year of construction

    2024
  • Heating

    Independent, air heating
  • Air conditioner

    Independent, cold/hot
  • Energy certification

    Not classifiable
Discover every corner of the property
+23
Additional options

Contact the advertiser

Or