Single-family detached house Poreč, Luka, Poreč

€ 920,000
5
251 m²
3+
No
Terrace

Note

Listing updated on 03/20/2026
Description

This description has been translated automatically and may not be accurate

reference: IN-2420

POREČ SURROUNDINGS - modern villa with roof terrace, sea view

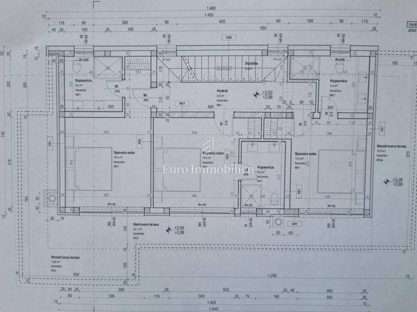
A beautiful villa of modern design is for sale, which is being built in a small Istrian town not far from Poreč and the sea (14 km). The planned completion of the works is in 2025. It consists of ground and first floor. On the ground floor there is an entrance hall, entrance hall, toilet, technical room, engine room, large living room with dining room, kitchen and living room, storage room, bedroom with its own bathroom. From the living room and bedroom there is an exit to a spacious covered terrace (38.7 m2), garden and swimming pool. Internal stairs lead to the first floor, where there are three more bedrooms, each with its own bathroom. On the first floor there is a large terrace partly covered (22.10 m2), partly uncovered (14.6 m2, 15.6 m2) with a view of the sea. The villa also has a second floor, i.e. a roof terrace of 87 m2 with a panoramic view of the sea and nature. All installations for sauna and Jacuzzi will be provided on the terrace. Sold without furniture. Heating is provided under the floor via a heat pump, and air conditioners will be installed. The joinery is PVC with electric blinds. Installations for alarm and video surveillance will be installed. A heated swimming pool of 40 m2 will be built in the garden, and three parking spaces are planned. There is a possibility of an agreement with the investor while it is under construction for some minor modifications and the choice of materials, such as ceramics, sanitary ware, and colors in the space can be influenced.

All the necessary facilities are 500 m away. The property is ideal for living and tourism!

Provizija agencije za kupca iznosi 3% + PDV i plaća se u slučaju kupovine nekretnine kod zaključenja kupoprodajnog Ugovora.

ID CODE: IN-2420

Euro Immobilien d.o.o.
Mob: 00385 (0)99 444 0500
Tel: +385 51 220 024
E-mail: info@euro-immobilien.hr
www.euro-immobilien.hr
Features
Type
Single-family detached house
Contract
Sale
Floor
Ground floor
Lift
No
Surface
251 m²
Rooms
5
Bedrooms
4
Bathrooms
3+
Balcony
No
Terrace
Yes
Garage, car parking
3 parking space
Heating
Independent, air heating
Air conditioning
Independent, cold/hot
Price information
Price
€ 920,000
Price per m²
3,665 €/m²
Energy efficiency
  • Year of construction

    2025
  • Heating

    Independent, air heating
  • Air conditioner

    Independent, cold/hot
  • Energy certification

    Not classifiable
Discover every corner of the property
+59
Additional options

Contact the advertiser

Or