1/71


Single-family detached house Barban, Barban
€ 520,000
Listing updated on 04/02/2026
Description
reference: SH149
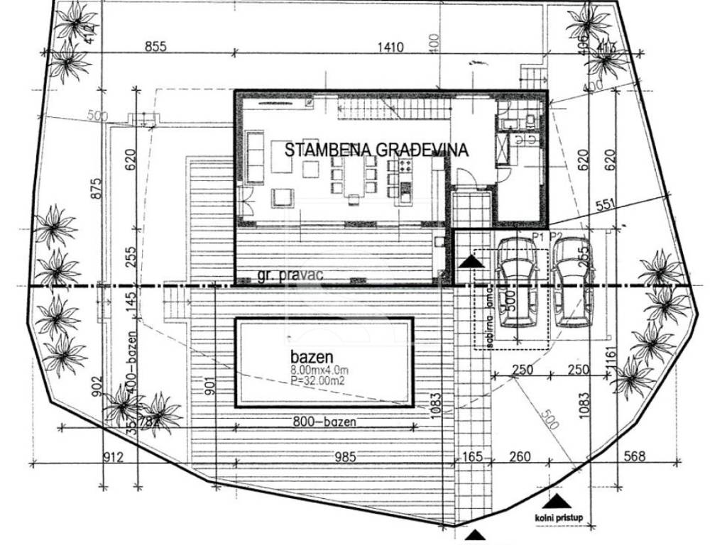
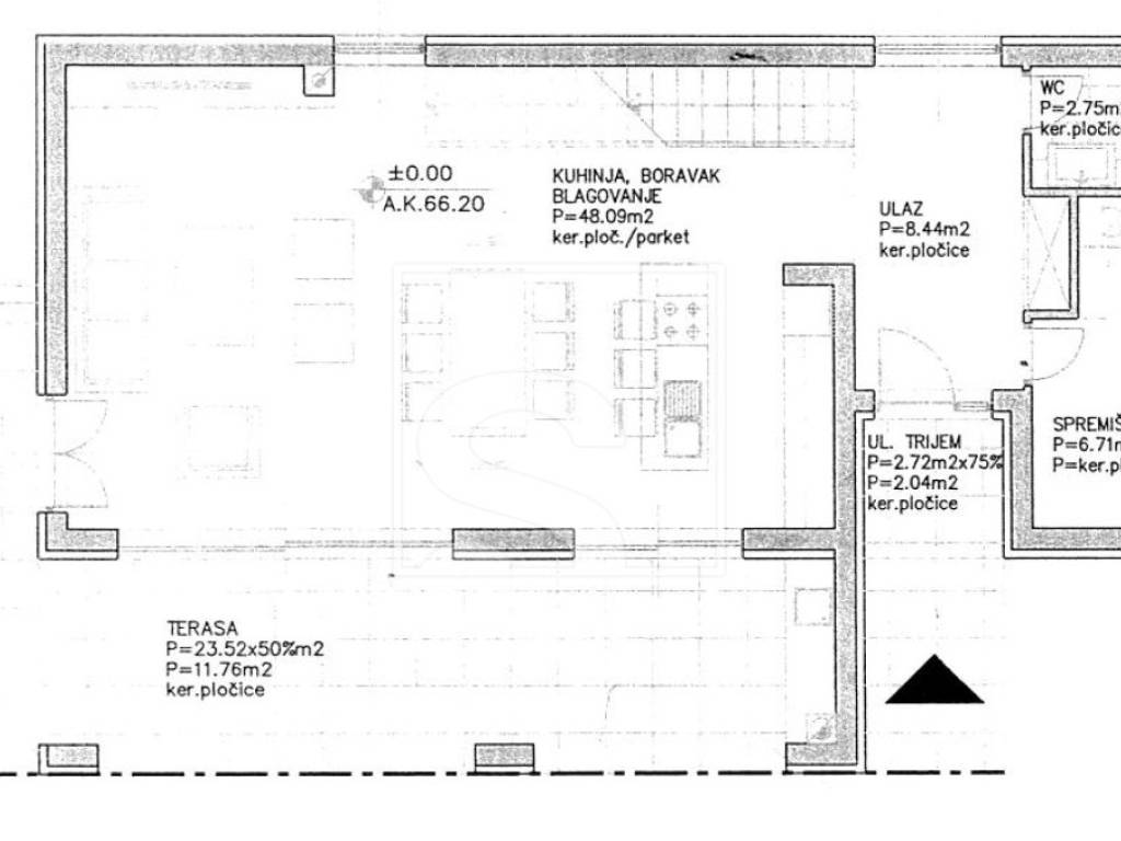
House Barban, 163,07m2
ID CODE: SH149
Claudio Mezzalira
Licencirani agent za nekretnine
Mob: +385 99 285 7323
Tel: +385 99 285 7323
E-mail: claudio@sevenhills.hr
www.sevenhills.hr
Features
- Type
- Single-family detached house
- Contract
- Sale
- Building floors
- 1
- Lift
- No
- Surface
- 163 m²
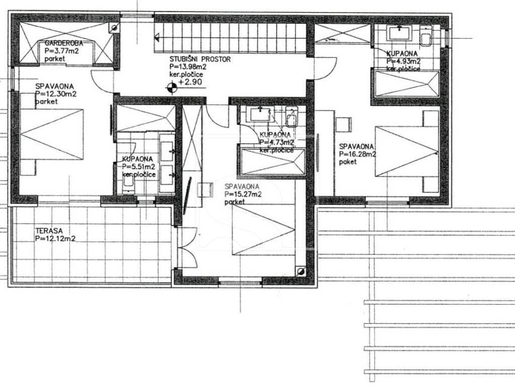
- Rooms
- 5
- Bedrooms
- 3
- Bathrooms
- 3
- Balcony
- No
- Terrace
- Yes
- Garage, car parking
- 1 in garage/box
- Air conditioning
- Independent, cold/hot
Other features
Price information
- Price
- € 520,000
- Price per m²
- 3,190 €/m²
Energy efficiency
Year of construction
2020Air conditioner
Independent, cold/hotEnergy certification
Not classifiable
Discover every corner of the property
Additional options