map icon

3-room flat new, mezzanine, Trogir

Trogir
€ 265,000
3
82 m²
2
M
Balcony

Note

Listing updated on 04/09/2025
Description

This description has been translated automatically and may not be accurate

reference: 336-S

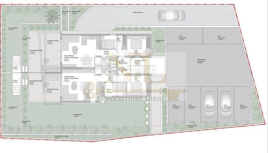
We are selling a two-room apartment with a garden S1 on the ground floor of a new modern building with a unique concept. The building is located in a strategic location with excellent access and a beautiful view of Trogir and the island of Čiovo, and all apartments have spacious south-facing balconies. The building has 5 apartments and has 9 garage parking spaces and 7 outdoor parking spaces. Apartment S1 is located on the ground floor of the building and consists of two bedrooms, bathroom, living room with kitchen, terrace and garden. The apartment has one outdoor parking space, and there is the possibility of purchasing a garage parking space for an additional charge. Surfaces: Interior area of the apartment: 53.11 m2 Terrace: 29.61 m2 Garden: 56.30 m2
Features
Type
Apartment | Luxury property
Contract
Sale | Income property
Floor
Raised ground floor
Building floors
2
Surface
82 m²
Rooms
3
Bedrooms
2
Kitchen
Kitchen diner
Bathrooms
2
Balcony
Yes
Garage, car parking
1 parking space
Heating
Central, floor heating, power supply
Air conditioning
Independent, cold/hot
Other features
  • External exposure
  • Security door
  • TV system with satellite dish
Price information
Price
€ 265,000
Price per m²
3,232 €/m²
Energy efficiency
  • Year of construction

    2024
  • Condition

    New / Under construction
  • Heating

    Central, floor heating, power supply
  • Air conditioner

    Independent, cold/hot
Discover every corner of the property
+17
Additional options

Contact the advertiser

Or