2-room flat new, ground floor, Luka, Poreč

€ 456,000
2
65 m²
1
G
Yes

Note

Listing updated on 05/11/2026
Description

This description has been translated automatically and may not be accurate

reference: 11-703

Poreč, surroundings, two-room apartment on the ground floor with a garden!

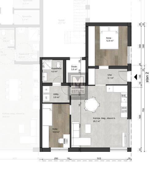
In the picturesque surroundings of Poreč, we offer an excellent two-room apartment on the ground floor of a new building, with a total of 13 apartments, providing an ideal combination of comfort and modern lifestyle. Located in a sought-after location, only 3 km from the coast, this building ensures a peaceful and comfortable life, while all the necessary facilities for a comfortable life are close at hand.

The apartment covers a net area of 61 m2, providing a spacious interior that has been carefully designed to meet the needs of modern life. It consists of an entrance hall that leads to an open living area that includes a kitchen, dining room and living room, creating a pleasant environment for family gatherings and gatherings. The apartment also has two comfortable bedrooms and a bathroom.

A special advantage of this apartment is the spacious terrace that leads to the garden of 257 m2, providing an ideal space for outdoor relaxation, barbecuing or growing plants. The apartment also has a storage room of 3.90 m2, which further facilitates the organization of the space.

For comfort and a pleasant climate throughout the year, the apartment is equipped with a floor heating system with a heat pump and air conditioners. It is sold turnkey, without furniture, giving the new owners the opportunity to personalize and create a home according to their own wishes.

The completion of the construction of this extraordinary apartment is expected in June 2025, giving the future owners the opportunity to enjoy their new home in a relatively short period of time. The property is subject to VAT, and the displayed price includes VAT.

This two-room apartment on the ground floor with a garden is an excellent opportunity for anyone looking for a comfortable and modern home in the beautiful surroundings of Poreč and its surroundings.

ID CODE: 11-703

M.A.K.A. ESTATE
Mob: +385955807672, +385912820327,
E-mail: maka@makaestate.net
www.maka.estate
Features
Type
Apartment
Contract
Sale
Floor
Ground floor
Lift
Yes
Surface
65 m²
Rooms
2
Bedrooms
2
Bathrooms
1
Garage, car parking
1 parking space
Air conditioning
Independent, cold/hot
Price information
Price
€ 456,000
Price per m²
7,015 €/m²
Energy efficiency
  • Year of construction

    2024
  • Condition

    New / Under construction
  • Air conditioner

    Independent, cold/hot
  • Energy certification

    Waiting for certification
Discover every corner of the property
+9
Additional options

Contact the advertiser

Or