

Note
This description has been translated automatically by Google Translate and may not be accurate
reference: 60
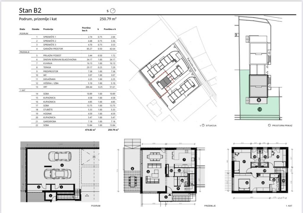
House Gornji Bukovac, Maksimir, 250,79m2
Year of construction
2024Heating
Independent, air heatingAir conditioner
Independent, cold/hotEnergy certification
Not classifiable