2-room flat new, first floor, Povljana

€ 310,000
2
68 m²
1
1
No
Terrace

Note

Listing updated on 11/06/2025
Description

This description has been translated automatically and may not be accurate

reference: iro-39718

PAG - POVLJANA, APARTMENT 68.65 M2, FOR SALE, SWIMMING POOL, GARAGE, NEW, GARDEN!!

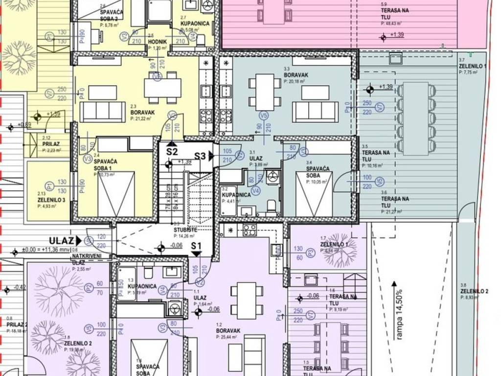
Pag - Povljana, a two-bedroom apartment of 68.65 m2 is for sale on the first floor of a residential building constructed in 2023, quality construction.

It consists of: two bedrooms, living room + kitchen + dining area, hallway, bathroom, loggia, and terrace.

Located in an excellent location, 260 m from the sea and beach, 380 m from the famous Mali Dubrovnik beach, close to shops, cafes, restaurants, and all other amenities needed for a pleasant and peaceful vacation!!!

Includes a parking space with an electric car charging socket (each parking socket is connected to the electricity meter of the respective apartment), a garage of 13.75 m2, a swimming pool measuring 7m x 3m, and a garden of 44 m2.

Documentation is in order.

See floor plan of the unit labeled S5.
Features
Type
Apartment | Medium property class
Contract
Sale
Floor
1 floor
Lift
No
Surface
68 m²
Rooms
2
Bedrooms
2
Bathrooms
1
Balcony
No
Terrace
Yes
Heating
Independent, air heating
Air conditioning
Independent
Distance from the sea
260 m
Other features
  • Pool
Price information
Price
€ 310,000
Price per m²
4,559 €/m²
Energy efficiency
  • Year of construction

    2023
  • Condition

    New / Under construction
  • Heating

    Independent, air heating
  • Air conditioner

    Independent
Discover every corner of the property
+21
Additional options

Contact the advertiser

Or