map icon

Building land for Sale

ZaprešićHruševec Kupljenski
€ 59,000
1,000 m²

Note

Listing updated on 10/05/2025
Description

reference: EK-585271

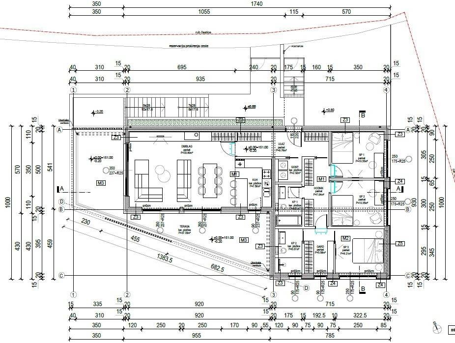
GRAĐEVINSKO ZEMLJIŠTE U HRUŠEVCU KUPLJENSKOM
ZA GRADNJU ATRAKTIVNE OBITELJSKE KUĆE
S ISHOĐENOM I PLAĆENOM GRAĐEVINSKOM DOZVOLOM

Površina zemljišta 1000m2.
Teren blago nagnut s lijepim pogledom u zelenilo i prirodu.

Projekt za obiteljsku kuću predviđa izgradnju dvije etaže,
od čega je donja, suterenska zamišljena kao spremište,
površine oko 80m2, gdje su moguće razne namjene, a
gornja, stambena etaža, površine oko 110m2, se sastoji od
prostranog dnevnog boravka s kuhinjom, blagovaonicom i terasom,
te tri spavaće sobe i dvije kupaonice, kao i odvojenog vešeraja.
Građevinska dozvola je pravomoćna i plaćena su sva davanja.

Sam položaj, odnosno lokacija zemljišta nalazi se oko 2 km
od Zagorske magistrale, izlaz Kupljenovo, a onda se autom
po obilaznici do Zagreba stiže za 20ak minuta.
Također, u Kupljenovu, na oko 2 km od lokacije nalazi se
željeznička stanica prigradskog vlaka, s koje se do
Glavnog kolodvora u Centru Zagreba dolazi za 32 minute.

Vlasnička dokumentacija uredna, prijenos moguć odmah.

Očekivana cijena 59.000€

Za sva ostala pitanja, uvid u projektnu dokumentaciju i pregled zemljišta,
molimo vas da nazovete Jadranku na 091 177 89 74.

BEZ PROVIZIJE ZA KUPCA !!!
If you want to know more, you can talk to Jadranka Kalamir.
Features
Contract
Sale
Type
Building land
Surface
1,000 m²
Other features
  • Electricity connection
  • Gas connection
  • Water connection
Price information
Price
€ 59,000
Price per m²
59 €/m²
Floorplan
tlocrt priz
tlocrt kata
Discover every corner of the property
+6
Advertiser
agent male

Jadranka Kalamir

agency card
Additional options

Contact the advertiser

Or
agent male

Jadranka Kalamir