1-bedroom flat Valmade, Šikići - Busoler , Pula

€ 170,000
1
48 m²
G
Terrace

Note

Listing updated on 03/03/2026
Description

reference: EUROVILLA-454169

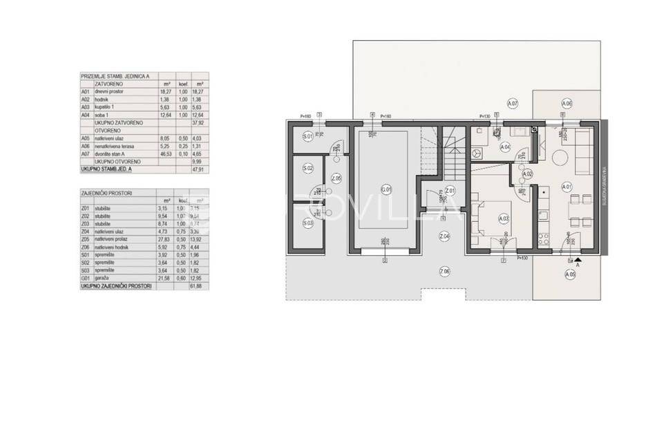
Predstavljamo novu stambenu zgradu od ukupno tri zgrade u nizu. Svaka zgrada se sastoji od četiri stambene jedinice.Riječ je o stanu u zgradi A oznake S1.Stan se sastoji od ulaznog prostora, dnevnog boravka s kuhinjom i blagovaonicom, spavaće sobe, kupaonice, natkrivene terase i dvorišta.Stan je opremljen klima uređajima za grijanje i hlađenje, podnim grijanjem, električnim roletama, protuprovalnim vratima, PVC troslojnim staklom te sanitarijama.Uz stan dolazi vanjsko parkirno mjesto i ostava.Predviđen završetak planiran 2026. godine.1/1 VLASNIŠTVO.U cijenu uključen PDV, kupac ne plaća porez na promet nekretnina.Za sva dodatna pitanja, potrebne informacije ili želju za organizacijom termina razgleda stana slobodno nas kontaktirajte!... Više na eurovilla.hr, ID: 454169
If you want to know more, you can talk to Larissa Rujak.
Features
Type
Apartment
Contract
Sale
Floor
Ground floor
Surface
48 m²
Rooms
1
Bedrooms
1
Terrace
Yes
Surface detail

Residential

Floor
Ground floor
Surface
48.0 m²
Coefficient
100%
Surface type
Main
Commercial area
48.0 m²
Price information
Price
€ 170,000
Price per m²
3,542 €/m²
Discover every corner of the property
+5
Advertiser
agent male

Larissa Rujak

agency card
Additional options

Contact the advertiser

Or
agent male

Larissa Rujak