map icon

Apartment new, second floor, Nin

Nin
€ 850,500
5+
142 m²
2
2
Terrace

Note

Listing updated on 01/22/2026
Description

This description has been translated automatically and may not be accurate

reference: 3922-1

Penthouse apartment for sale only 20 m from the sea. It is a new building with an elevator in the 2nd row to the sea in Zaton near Zadar. The apartment has a beautiful view of the sea.
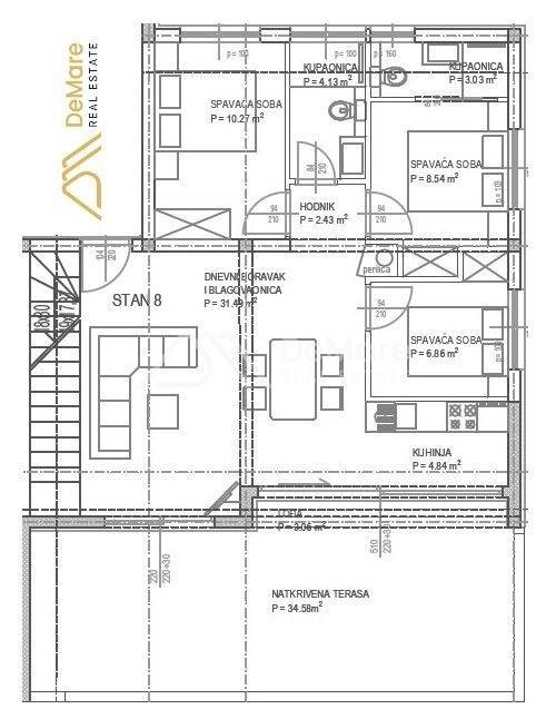
This is an apartment on the second floor. The layout of the rooms consists of a hallway, 2 bedrooms, a bedroom with a bathroom, a bathroom, a kitchen with a dining room and a living room, and a partially covered terrace. The apartment leads directly to the roof terrace that belongs to this apartment. The area of the roof terrace is 102.32 m2. There is a 15.30 m2 swimming pool on the terrace. The net usable area of the described rooms with terraces is 130.05 m2. In addition, the apartment has two parking spaces.
The total net area of the apartment with all accessories is 141.75 m2.
The estimated deadline for moving in is the summer of 2024.
The real estate is in the VAT system, so the buyer does not pay real estate sales tax.
Payment of the first part of the amount of 10% of the price of the property (down payment), and for the rest of the amount, the possibility of financing with a housing loan.
This property is only 700 m from the center of Zaton, and the city of Zadar is about 12 km away.

Equipment
Construction with brick thermal blocks. Facade thermal insulation 10 cm styrofoam. The floor coverings are tiles and parquet. Aluminum windows with three-layer glass, mosquito nets and electric shutters and blinds. Air conditioners are in the living room and in each bedroom. In addition, underfloor heating with a heat pump and air conditioning (Mitshubishi). Furthermore, the entrance door is burglar-proof and fire-proof. There is an outdoor shower in the garden.
Energy certificate A is expected for this property.
Location
Zaton is a small tourist town located between two historical cities - Nin (2 km) and Zadar (12 km), it represents a unique combination of Dalmatian architecture, pleasant Mediterranean climate, preserved nature, rich cultural and historical heritage and lively tourist everyday life.
Sandy beaches in the shade of centuries-old pines are ideal for families with children.
Nin is a place known for its sandy beaches and healing mud, and is located in the immediate vicinity of Paklenica and Kornati National Parks.
Features
Type
Apartment
Contract
Sale
Floor
2 floor
Surface
142 m²
Rooms
5+
Bedrooms
3
Bathrooms
2
Terrace
Yes
Price information
Price
€ 850,500
Price per m²
5,989 €/m²
Energy efficiency
  • Year of construction

    2025
  • Condition

    New / Under construction
  • Energy certification

    Not classifiable
Discover every corner of the property
+27
Additional options

Contact the advertiser

Or