map icon

Apartment new, first floor, Nin

Nin
€ 363,600
5
73 m²
1
1
Yes
Terrace

Note

Listing updated on 12/23/2025
Description

This description has been translated automatically and may not be accurate

reference: 3857-1

Luxury flat/apartment for sale only 20 m from the sea in Zaton. It is a new building with an elevator, in the 2.nd row to the sea in Zaton near Zadar, this apartment has a sea view.

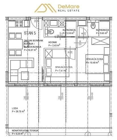
This is an apartment on the first floor of the building. The layout of the rooms consists of a hallway, 2 bedrooms, a bathroom, a kitchen with a dining room and a living room, and a partially covered terrace. The net usable area of the described premises with a terrace is 65.57 m2. In addition, the apartment has two parking spaces.
The total net area of the apartment with all accessories is 72.72 m2.

The estimated deadline for moving in is the summer of 2024.
The investor is a company, so the buyer does not pay real estate sales tax.
Payment of the first part of the amount of 10% of the price of the property (down payment), and for the rest of the amount, the possibility of financing with a housing loan.
This property is only 700 m from the center of Zaton, and the city of Zadar is about 12 km away.

Equipment:
Construction with brick thermal blocks. Facade thermal insulation is 10 cm styrofoam. The floor coverings are tiles and parquet. Aluminum windows with three-layer glass, mosquito nets and electric shutters and blinds. Air conditioners are in the living room and in each bedroom. In addition, underfloor heating with a heat pump and air conditioning (Mitshubishi). Furthermore, the entrance door is burglar-proof and fire-proof. There also is an outdoor shower in the garden.
Energy certificate A is expected for this property.

Location:
Zaton is a small tourist town located between two historical cities - Nin (2 km) and Zadar (12 km), it represents a unique combination of Dalmatian architecture, pleasant Mediterranean climate, preserved nature, rich cultural and historical heritage and lively tourist everyday life.
Sandy beaches in the shade of centuries-old pines are ideal for families with children.
Nin is a place known for its sandy beaches and healing mud, and is located in the immediate vicinity of Paklenica and Kornati National Parks.
Features
Type
Apartment
Contract
Sale
Floor
1 floor
Lift
Yes
Surface
73 m²
Rooms
5
Bedrooms
2
Bathrooms
1
Terrace
Yes
Air conditioning
Central, cold/hot
Other features
  • Security door
Price information
Price
€ 363,600
Price per m²
4,981 €/m²
Energy efficiency
  • Year of construction

    2025
  • Condition

    New / Under construction
  • Air conditioner

    Central, cold/hot
  • Energy certification

    Not classifiable
Discover every corner of the property
+17
Additional options

Contact the advertiser

Or