Building land for Sale

€ 315,000
907 m²

Note

Listing updated on 10/10/2025
Description

reference: iro-4293

Molim zvati na broj: +385 98 725978

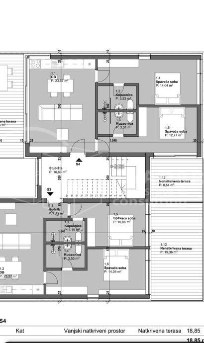
Prodaje se građevinsko zemljište u Novalji na otoku Pagu površine 907 m2, s odobrenim idejnim projektom za izgradnju zgrade sa 6 trosobnih apartmana/ stanova.

Zemljište se nalazi između već izgrađenih objekata, tako da je kompletna infrastruktura dostupna. Parcela je smještena na mirnom i atraktivnom dijelu Novalje, svega 10- tak min hoda do centra mjesta te oko 400 m od mora / plaže.

Dimenzije parcele su: 41,75m x 21,8m

Pravilnog je pravokutnog oblika



Odobreni idejni projekt pripremljen je za gradnju 6 trosobnih stanova, od kojih bi svaki stan sadržavao:

- dnevni boravak sa kuhinjom

- 2 spavaće sobe

- 2 kupaonice sa toaletom

- 2 parkirna mjesta po stanu

- terase / balkone

Za stanove u prizemlju predviđena je gradnja bazena i vanjska ljetna kuhinja.

Budući je lokacija zemljišta na preglednom dijelu mjesta, sa svih etaža osiguran je pogled na more.

Zemljište sa navedenom projektnom dokumentacijom odlična je investicijska prilika za gradnju stanova ili turističkih apartmana.

Dokumentacija uredna.

Dajemo kompletnu stručnu i pravnu uslugu

Za više informacija na upit:
mob: +385 98 725978
mail: info@kvadar-nekretnine.hr
www.kvadar-nekretnine.hr
If you want to know more, you can talk to Kvadar2 Kvadar2.
Features
Contract
Sale
Type
Building land
Surface
907 m²
Other features
  • Electricity connection
  • Sewer connection
  • Water connection
Price information
Price
€ 315,000
Price per m²
347 €/m²
Discover every corner of the property
+7
Additional options

Contact the advertiser

Or