4-room flat Ulica Slavka Kolara 87, Velika Gorica

€ 650,000
4
142 m²
2
2
Yes
Terrace

Note

Listing updated on 04/24/2026
Description

reference: EK-721993

Parthenon nekretnine posreduju u prodaji penthousa, veličine 142.43 m2, u Velikoj Gorici.

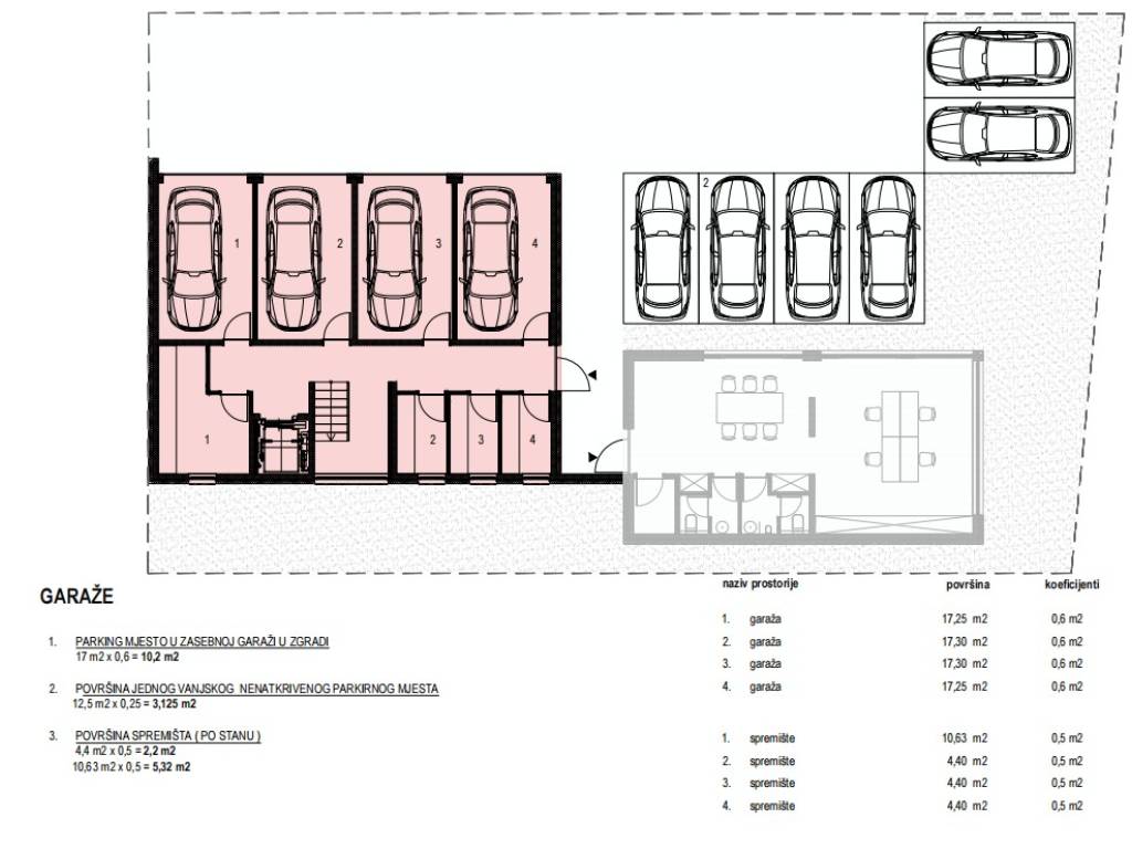
Stan se nalazi u stambenoj zgradi, smještenoj u mirnom dijelu naselja, okruženoj zelenilom. Zgrada ima ukupno dva kata i dodatni uvučeni kat. Izuzetna komfornost objekta omogućena je širokim prilazom s glavne ulice, što omogućuje ulazak automobilom u zasebnu garažu. Iz prizemlja zasebnih garaža, protežu se zasebna spremišta i ostakljeno stubište s dizalom. Dizalo vodi na sve etaže, a uvučeni kad ima zaseban pristup, što mu osigurava potpunu diskreciju. Stanu pripada i garaža i vanjsko parkirno mjesto, (ukupna nkp – 155.28 m2).

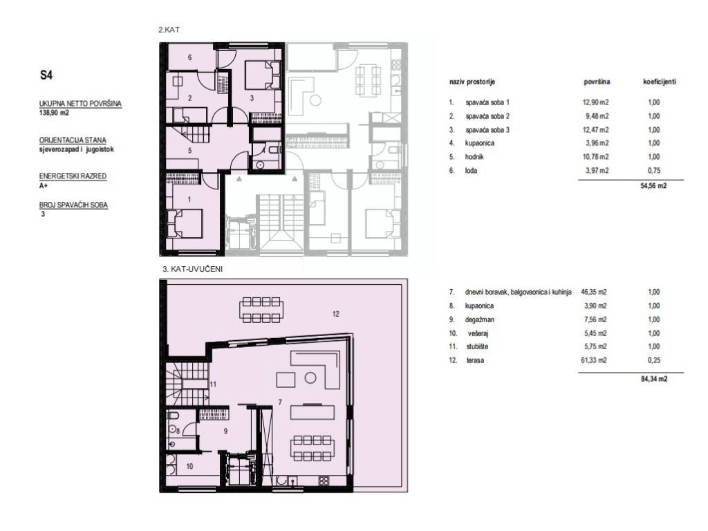
Stan od 142.43 m2, proteže se na dvije etaže, a sastoji se od:

1.etaža (2. kat) – prostrani hodnik, 3 spavaće sobe, od kojih dvije imaju izlazak na lođu, te kupaonica.

2.etaža (uvučeni kat) – prostrani dnevni boravak s blagovaonicom i kuhinjom, velikim staklenim površinama i izlaskom na prostranu terasu, degažman, vešeraj i stubište. Stan ima i pripadajuće spremište u prizemlju zgrade.

Stan je opremljen dizalicama topline, podnim grijanjem i klima uređajima, stolarija je Gealan, lift Otis, keramika je Lamborghini, ograde su staklene, posebno rađene brončane boje. Energetski razred je A+, orijentacija stana je SZ/JI.

Stan ima osigurano garažno mjesto i vanjsko parkirno mjesto, uključeno u cijenu..

Mikrolokacija je odlična za ugodan i nesmetan život, s dobrom prometnom povezanosti. U neposrednoj blizini dostupe su sve obrazovne, kulturne i administrativne institucije, kao i uslužno-opskrbni sadržaj.

Cijena stana je: 650.000 €

Vlasništvo je uredno 1/1
Mogućnost kupnje na kredit

Za više informacija, na raspolaganju Vam stoji naša agentica Ines koju možete kontaktirati na broj telefona: 091-482-5857.
Features
Type
Penthouse | Full ownership
Contract
Sale
Floor
2
Building floors
3
Lift
Yes
Surface
142 m²
Rooms
4
Bedrooms
3
Bathrooms
2
Terrace
Yes
Garage, car parking
1 in garage/box, 2 parking space
Heating
Independent, floor heating
Other features
  • Security door
  • Utility/Storage room
Surface detail

Residential

Floor
2
Surface
142.4 m²
Coefficient
100%
Surface type
Main
Commercial area
142.4 m²
Price information
Price
€ 650,000
Price per m²
4,577 €/m²
Detail of costs
Condominium fees
No condominium fees
Energy efficiency

Energy consumption

≥ 250 kWh/m² yearA+

Discover every corner of the property
+20
Additional options

Contact the advertiser

Or