Single-family detached house 176 m², new, Vodice

€ 550,000
4
176 m²
3
No
Terrace

Note

Listing updated on 04/09/2026
Description

This description has been translated automatically and may not be accurate

reference: K200

Vodice, new construction, modern semi-detached house with garage and swimming pool

Semi-detached house S1 for sale, located in a quiet area of Vodice, just a few minutes’ walk from the town center and the beach. The property is situated in a newly developed residential zone, ensuring a tidy and modern environment. The house is spread over two floors and includes a garage as well as a landscaped garden with a swimming pool.

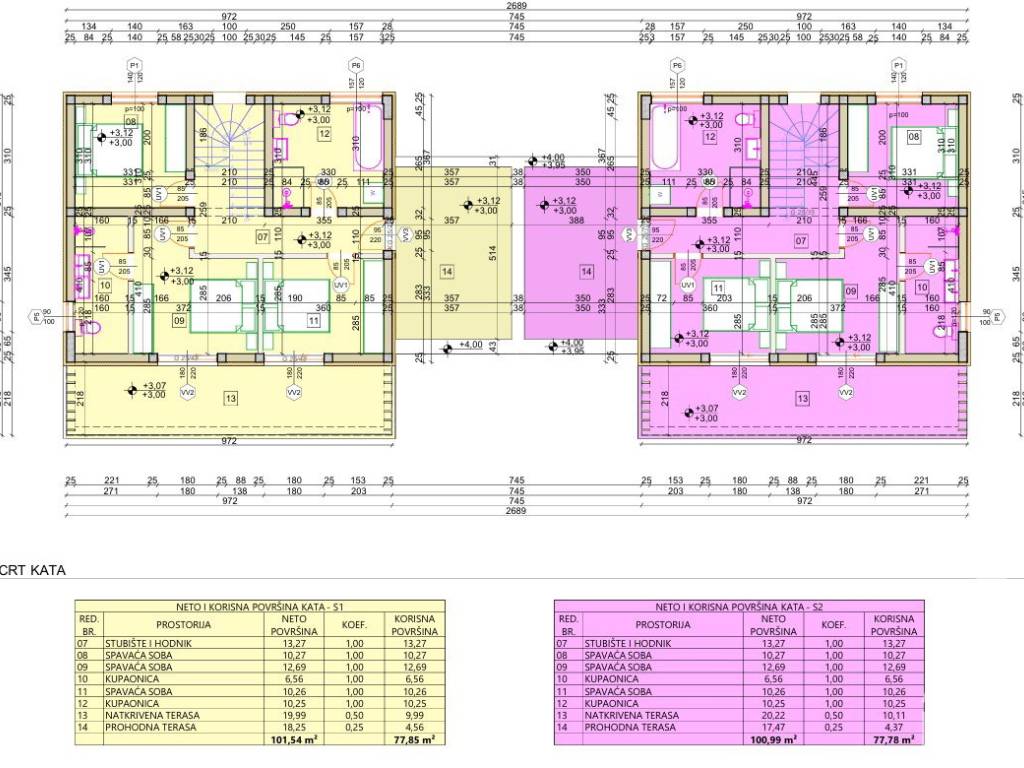
The ground floor (usable area 79.66 m2 / net area 99.38 m2) consists of an entrance hall, kitchen, dining room and living room in an open-plan layout with access to a covered terrace and outdoor area with a pool. The remaining part of the ground floor includes a bedroom, bathroom, storage room and garage. Internal stairs lead to the first floor (usable area 77.85 m2 / net area 101.54 m2) where there are three bedrooms, two bathrooms (one en-suite), a terrace accessible from two bedrooms, and an additional shared terrace.

High-quality materials and equipment were selected throughout the construction. Vinyl flooring in living areas and bedrooms, ceramic tiles in bathrooms, air conditioning units in the living room and all bedrooms, underfloor heating in the living area and bathrooms, and electric roller shutters. The approximately 200 m2 landscaped garden includes a relaxing outdoor area with a swimming pool and private parking for two vehicles.

Completion of works and move-in are expected at the beginning of 2026.

Vodice is a well-known Dalmatian coastal town, valued for its maintained beaches, seaside promenades, diverse gastronomic offer, and excellent connectivity with Šibenik, Krka National Park, and the highway. The location of the house provides comfort for year-round living as well as vacation use, combining privacy with proximity to all amenities.

Render images are used in the listing.

For further information and viewing arrangements, please contact us.



The brokerage fee is charged according to the agency's General Terms and Conditions.
Features
Type
Single-family detached house | Medium property class
Contract
Sale
Lift
No
Surface
176 m²
Rooms
4
Bedrooms
4
Bathrooms
3
Balcony
No
Terrace
Yes
Heating
Independent, air heating
Air conditioning
Independent
Other features
  • Security door
  • Pool
Price information
Price
€ 550,000
Price per m²
3,125 €/m²
Energy efficiency
  • Year of construction

    2025
  • Condition

    New / Under construction
  • Heating

    Independent, air heating
  • Air conditioner

    Independent
Discover every corner of the property
+19
Additional options

Contact the advertiser

Or