map icon

Apartment new, second floor, Pula

Pula
€ 395,000
5+
106 m²
2
2
Furnished

Note

Listing updated on 05/02/2026
Description

reference: 1457-1

NOVO U PONUDI !

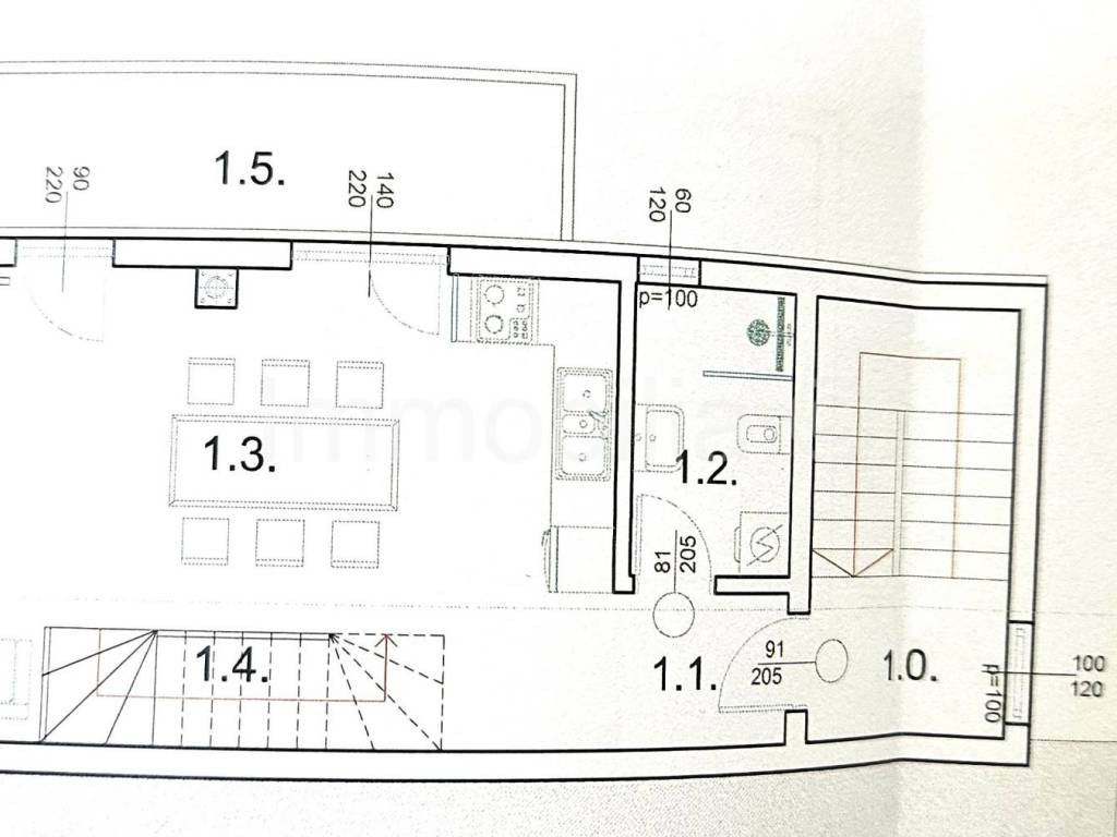
Ovaj prostrani stan od 106 m smješten je na tri etaže i nudi sve što vam je potrebno za ugodan i luksuzan život.
Stan ima svoj privatni ulaz i vlastito stubište, pružajući vam maksimalnu privatnost i sigurnost.
U stanu se nalaze 3 spavaće sobe te 2 moderne i elegantno uređene kupaonice, opremljene visokokvalitetnim sanitarijama.
Stan ima 2 prostrane terase, idealne za opuštanje na svježem zraku, uživanje u kavi ili večernjem druženju s prijateljima i obitelji.
Sa posljednje etaže pruža se prekrasan pogled na more.
Stan je izgrađen od kvalitetnih materijala, s posebnom pažnjom na detalje. Energetski učinkoviti prozori s komarnicima i električnim roletama, vrhunska keramika , parketi i protuprovalna vrata , moderna kuhinja, prekrasno stubište sa led rasvjetom koje povezuje dnevni dio sa noćnim, led rasvjeta i indirektna rasvjeta u cijelom stanu , moderni garderobni ormari izrađeni po mjeri..
Kompletan stan je klimatiziran (sve prostorije) , podno grijanje..
Privatni parking ispred zgrade.
Stan se prodaje kompletno namješten i opremljen.
Stan je smješten u mirnom i sigurnom kvartu , u blizi svih potrebnih sadržaja - škole , vrtića , novih trgovačkih centara i javnog prijevoza. Također lokacija omogućuje brz pristup centru grada.
Ako tražite savršen spoj prostora, funkcionalnosti i odlične lokacije, ovaj stan je idealan izbor za vas.
UREDNO VLASNIŠTVO , ETAŽIRANO , 1/1 , UPORABNA DOZVOLA, BEZ TERETA !
Features
Type
Apartment
Contract
Sale
Floor
2 floor
Surface
106 m²
Rooms
5+
Bedrooms
3
Bathrooms
2
Furnished
Yes
Garage, car parking
1 parking space
Heating
Central, floor heating
Air conditioning
Central, cold/hot
Other features
  • Closet
  • Security door
  • Utility/Storage room
Price information
Price
€ 395,000
Price per m²
3,726 €/m²
Energy efficiency
  • Condition

    New / Under construction
  • Heating

    Central, floor heating
  • Air conditioner

    Central, cold/hot
  • Energy certification

    Not classifiable
Discover every corner of the property
+29
Additional options

Contact the advertiser

Or