Single-family detached house 166 m², new, Luka, Poreč

€ 550,000
5+
166 m²
3+
Terrace

Note

Listing updated on 03/14/2026
Description

This description has been translated automatically and may not be accurate

reference: 2365-1

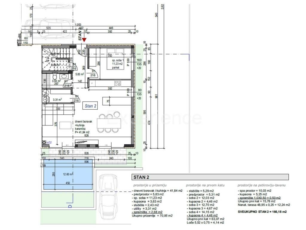
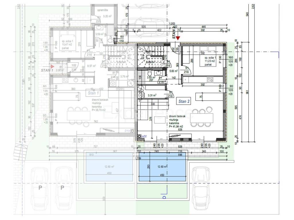
Located in a quiet, green area of Poreč, just 2 kilometers from the city center and the beach, this modern semi-detached new-build house is for sale, with a total area of 166,18 m. Spread over three floors, it perfectly combines contemporary design, airy space, and a functional layout. Thanks to wide glass openings and a carefully planned floor plan, the house offers plenty of natural light and a feeling of comfort throughout the year.

Room Layout:
Ground floor: Entrance hall, open space concept of the living room, kitchen and dining area with access to a covered terrace and garden, bedroom, bathroom, laundry room and storage room.
First floor: Three comfortable bedrooms, each with its own bathroom two bedrooms with access to a balcony (5,52 m),
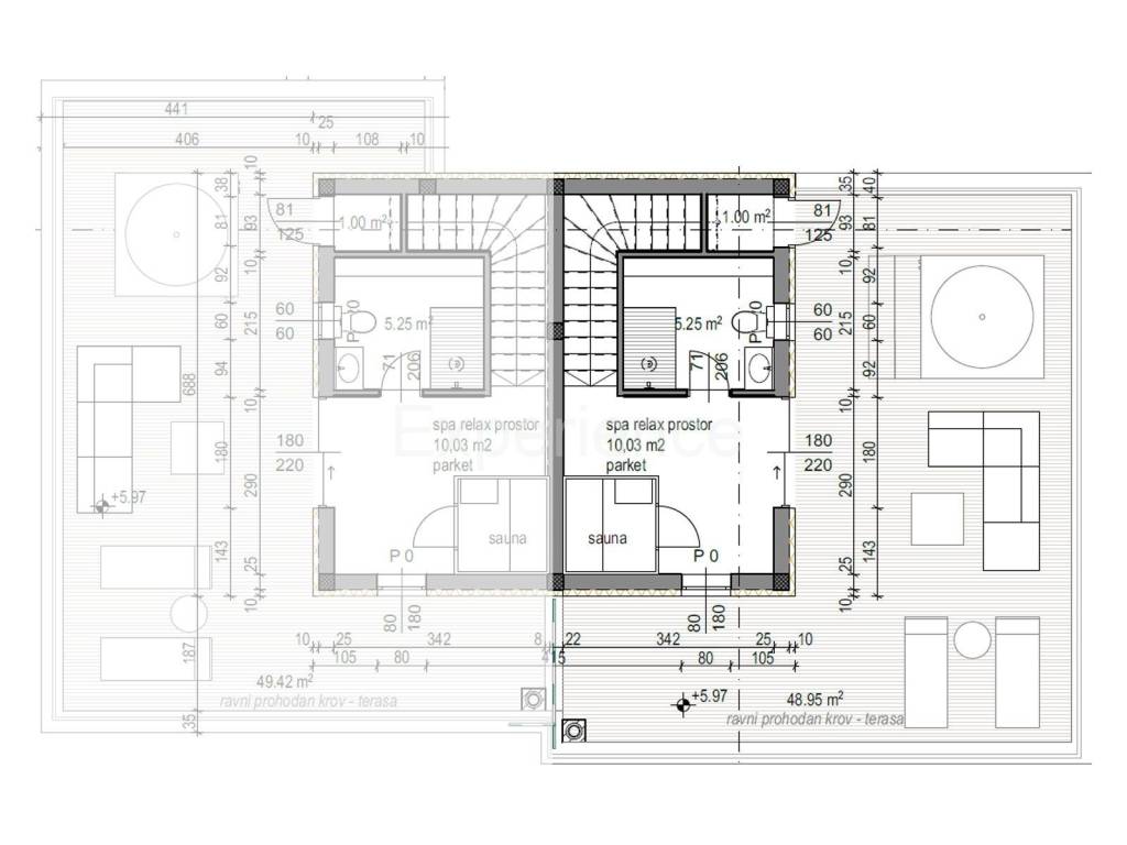
Attic: SPA relaxation area with a sauna, bathroom, and a spacious rooftop terrace (48,95 m) with a jacuzzi connection, west-facing a perfect spot to enjoy the sunset view.

EXTERIOR
Outdoor enjoyment is enhanced by a private garden with a swimming pool of 12,60 m an ideal spot for summer refreshment and relaxation in the privacy of your own garden.

The house will be equipped with underfloor heating and air conditioning units that ensure a comfortable temperature throughout the year.

Planned completion of construction: June 2026.

Situated in a peaceful residential zone, this home offers privacy and tranquility, while being within walking distance of all essential amenities: grocery stores, restaurants, cafés, and more. The location offers the perfect balance between relaxed living and proximity to the city and sea.

Additional Benefits:
A well-known investor with many years of experience and recognizable quality projects,
The buyer does not pay real estate transfer tax in the amount of 3% of the purchase price,
The price includes VAT (25%).
If you want to know more, you can talk to Patricija Simonetti.
Features
Type
Single-family detached house
Contract
Sale
Floor
1
Surface
166 m² | commercial 312 m²
Rooms
5+
Bedrooms
4
Bathrooms
3+
Terrace
Yes
Heating
Central
Surface detail

Residential

Floor
1
Surface
166.0 m²
Coefficient
100%
Surface type
Main
Commercial area
166.0 m²

Land

Floor
Ground floor
Surface
146.0 m²
Coefficient
100%
Surface type
Accessory
Commercial area
146.0 m²
Price information
Price
€ 550,000
Price per m²
1,763 €/m²
Energy efficiency
  • Year of construction

    2026
  • Condition

    New / Under construction
  • Heating

    Central
  • Energy certification

    Not classifiable
Discover every corner of the property
+9
Advertiser
agency card
Additional options

Contact the advertiser

Or