Apartment new, first floor, Tar-Vabriga

€ 200,640
5
63 m²
1
1
Yes

Note

Listing updated on 03/14/2026
Description

This description has been translated automatically and may not be accurate

reference: 2346-1

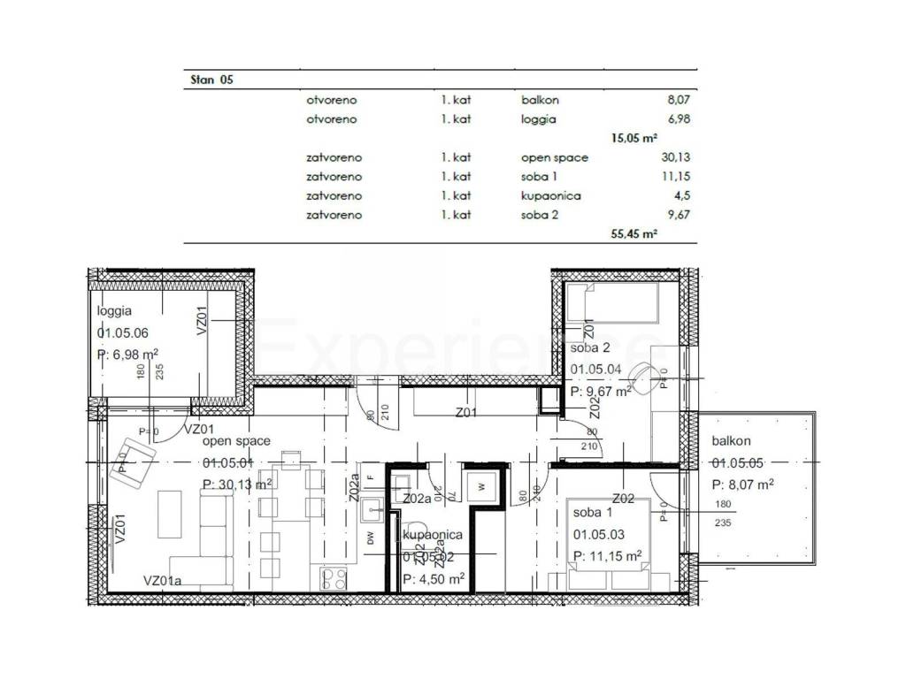
In Tar - approx. 2.500 m from the sea, in a very quiet environment an apartment with a surface of 62,70 m is for sale. The apartment is situated on the first floor of a residential building. Contains: an open and bright space in which are situated a living room, kitchen and dining room with access to the balcony (6.98 m), two bedrooms one of which has access to the balcony (8.07 m) and a bathroom.

On the ground floor of the building there is a common bicycle storage room. The building is equipped with an elevator.

The apartment also has two parking spaces in front of the building.

Technical features:
- 18 cm thermal insulation wool,
- reinforced - concrete construction resistant to earthquakes,
- elevator,
- electric underfloor heating in the entire apartment and a thermostat in each room,
- air conditioners in all rooms,
- PVC joinery with triple glazing,
- mosquito nets,
- electric shutters,
- fireproof entrance door,
- intercom with video call,
- high-quality Italian ceramics,
- Villeroy and Boch sanitary ware.

The special advantage of this apartment is the LOCATION, within walking distance there is a school, kindergarten, pharmacy, several restaurants, grocery store, supermarket and coffee bar.

The planned completion of construction is by June 2026.

In addition, there is no duty of tax on real estate ownership transfer, in the amount of 3% of the contracted purchase price.
If you want to know more, you can talk to Patricija Simonetti.
Features
Type
Apartment
Contract
Sale
Floor
1 floor
Lift
Yes
Surface
63 m²
Rooms
5
Bedrooms
2
Bathrooms
1
Heating
Central
Other features
  • Security door
Price information
Price
€ 200,640
Price per m²
3,185 €/m²
Energy efficiency
  • Year of construction

    2026
  • Condition

    New / Under construction
  • Heating

    Central
  • Energy certification

    Not classifiable
Discover every corner of the property
+8
Advertiser
agency card
Additional options

Contact the advertiser

Or