map icon

Terraced house 3 rooms, new, Vodice

Vodice
€ 495,000
3
171 m²
2

Note

Listing updated on 01/28/2026
Description

This description has been translated automatically and may not be accurate

reference: 3281-1

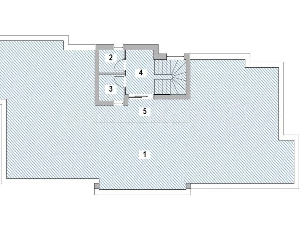
A terraced house for sale in a new building located just 200m from the beautiful pebble beach in Vodice. The house has a total area of 332 m2, or 171 m2 of net usable area, of which 113.58 m2 is interior space. It extends over three floors. The ground floor has an entrance area, a bathroom and an open-concept kitchen with a dining room and living room, which leads to a garden of a total of 37 m2 of floor space, and within which there is a paved area with two parking spaces. An internal staircase leads to the first floor, where there are three bedrooms and another bathroom. On the third floor there is a large roof terrace of 153 m2 with a beautiful view of the sea and the surrounding islands. The terrace also has an additional toilet, storage room, large sundeck and space for a jacuzzi. This modern design property will be equipped according to the latest construction standards. Among the equipment, we highlight: 8 cm polystyrene facade, anthracite-coloured PVC windows and doors with built-in mosquito nets and roller shutters with an electric motor, quality ceramic tiles, quality laminate flooring in the rooms, Grohe bathroom fixtures, air conditioners with Wi-Fi control, underfloor heating in the bathrooms and living room, glass railings on the terraces, preparation for a jacuzzi in the garden... The planned completion date of construction is August 15, 2025. The prime location of this property will guarantee the owners a wonderful vacation near the beach and all other amenities of the town of Vodice, but also an excellent investment.

Viewing this property is possible only with the signing of our standard agency agreement, which is the basis for further actions related to the sale of real estate, all in accordance with the Law on Data Protection and the Real Estate Brokerage Act.
Features
Type
Terraced house
Contract
Sale
Surface
171 m²
Rooms
3
Bathrooms
2
Air conditioning
Central, cold/hot
Price information
Price
€ 495,000
Price per m²
2,895 €/m²
Energy efficiency
  • Condition

    New / Under construction
  • Air conditioner

    Central, cold/hot
  • Energy certification

    Not classifiable
Discover every corner of the property
+14
Additional options

Contact the advertiser

Or