map icon

3-room flat new, second floor, Okrug

Okrug
€ 1,200,000
3
147 m²
3
2

Note

Listing updated on 01/28/2026
Description

This description has been translated automatically and may not be accurate

reference: 3149-1

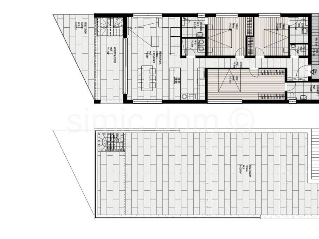
Modern penthouse apartment in a new building in the first row on Ciovo, from an investor who builds extremely high-quality real estate with excellent and modern design is for sale. The building is located in the most attractive area and in a quiet location right next to the turquoise blue sea and a beautiful beach. The penthouse apartment is placed on the second floor of a smaller building and has an internal area of 104 m2 and 3 more terraces, 2 at the apartment level and a large roof terrace. The terraces together have 154 m2 of floor space. With the coefficients included, the apartment has a net usable area of 147 m2. It consists of a hallway, 3 bedrooms - each with its own bathroom, and 1 with its own dressing room, a guest toilet, a laundry room, and a kitchen with a dining room and a living room from which you can exit to a terrace with a beautiful view of the sea and the Dalmatian islands. The penthouse has a complete roof terrace of 123.45 m with a view of the Dalmatian islands, which is ideal for a summer kitchen, hot tub, lounge and other facilities. It also has 2 outdoor parking spaces. Each apartment will have a separate entrance to the building, which provides privacy. All apartments will be superbly equipped, underfloor heating will be carried out throughout the apartment, all rooms are air-conditioned, aluminium windows, top-quality ceramics and sanitary ware, and the building will also have video surveillance. The building's courtyard will include arranged parking spaces and beautiful Mediterranean vegetation. This is a top-quality property whose value will always be at a high level and which the owners will certainly enjoy. All facilities are nearby, and the airport is only 10 km away.

Viewing this property is possible only with the signing of our standard agency agreement, which is the basis for further actions related to the sale of real estate, all in accordance with the Law on Data Protection and the Real Estate Brokerage Act.
Features
Type
Apartment
Contract
Sale
Floor
2 floor
Surface
147 m²
Rooms
3
Bathrooms
3
Air conditioning
Central, cold/hot
Price information
Price
€ 1,200,000
Price per m²
8,163 €/m²
Energy efficiency
  • Condition

    New / Under construction
  • Air conditioner

    Central, cold/hot
  • Energy certification

    Not classifiable
Discover every corner of the property
+9
Additional options

Contact the advertiser

Or