map icon

3-room flat new, first floor, Okrug

Okrug
€ 340,000
3
87 m²
2
1

Note

Listing updated on 01/28/2026
Description

This description has been translated automatically and may not be accurate

reference: 3050-1

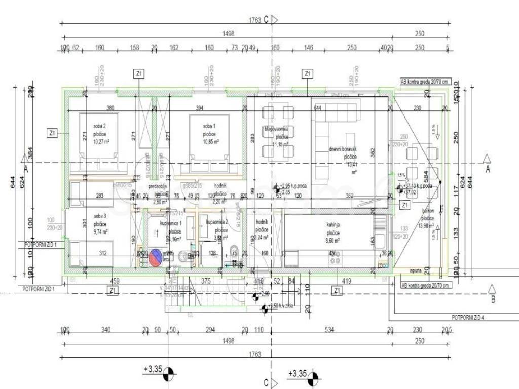
For sale is an apartment placed on the first floor of a new building in Okrug Gornji. The building is located in an excellent location that is quiet and yet very close to the beach and amenities, not even 200m away. The apartment has a total internal area of 80m2 and a covered terrace of 14m2 with a beautiful view. With the calculated coefficients, the apartment has a net usable area of 87m2. The apartment also has two outdoor parking spaces included in the price. The apartment consists of a hallway, three bedrooms, two bathrooms, a living room with a kitchen and a dining room. The building will be built to the highest standard, and the apartments will be equipped with air conditioning in every room, underfloor heating, aluminum windows with electric lifts. The sale is carried out on a "turnkey" basis, which includes installation of ceramics, laminate, installation of sanitary ware, etc. Construction is scheduled to be completed by the spring of 2026.

Viewing this property is possible only with the signing of our standard agency agreement, which is the basis for further actions related to the sale of real estate, all in accordance with the Law on Data Protection and the Real Estate Brokerage Act.
Features
Type
Apartment
Contract
Sale
Floor
1 floor
Surface
87 m²
Rooms
3
Bathrooms
2
Air conditioning
Central, cold/hot
Price information
Price
€ 340,000
Price per m²
3,908 €/m²
Energy efficiency
  • Condition

    New / Under construction
  • Air conditioner

    Central, cold/hot
  • Energy certification

    Not classifiable
Discover every corner of the property
+6
Additional options

Contact the advertiser

Or