map icon

2-room flat new, ground floor, Okrug

Okrug
€ 186,296
2
65 m²
1
G

Note

Listing updated on 03/03/2026
Description

This description has been translated automatically and may not be accurate

reference: 4509-1

In Okrug Gornji, only 2 km from the center of the UNESCO city of Trogir, we are mediating the sale of 28 apartments in a new project.
This new building with an elevator is located in a quiet location, approximately 400 m from beautiful beaches, shops, restaurants.
The apartments are arranged on floors - basement, ground floor, first and second floor. Each residential unit offers a comfortable and functional layout with one, two or three bedrooms, an open living area, kitchen and dining room and a covered terrace or loggia.
Quality construction (PVC joinery with triple glazing, large sliding walls, electric blinds, mosquito nets, underfloor heating in the bathroom, air conditioning, quality ceramics, etc.).
The investor offers the buyer the opportunity to choose the floor coverings and sanitary ware.
The apartment is sold on a "turnkey" basis.
-**9*
*BASEMENT* (basically ground floor)
S1
(TWO BEDROOM)
consists of a hallway, two bedrooms, bathroom, living room, open-plan kitchen and dining room and a covered terrace. It has a small garden of approximately 6 m2, which makes a total area
67.00 m2.
PRICE: 186,296.00
S2
(THREE BEDROOM)
consists of a hallway, three bedrooms, bathroom, toilet, living room, open-plan kitchen and dining room and a covered terrace with a total area of 93.63 m2.
This residential unit can be made accessible to people with disabilities and reduced mobility. This apartment has a large garden of almost 111.70 m2.
PRICE: 246,600.00
S3
(TWO BEDROOM)
consists of a hallway, two bedrooms, a bathroom, a living room, an open-plan kitchen and dining room and a loggia.
Total area 92.02 m2.
PRICE: 245,543.00
S4
(ONE BEDROOM)
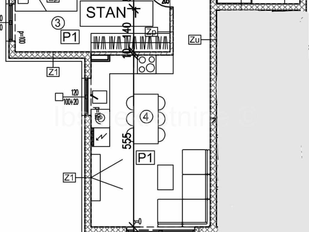
consists of a hallway, a bedroom, a bathroom, a living room, an open-plan kitchen and dining room and a loggia. Total area 65.50 m2.
PRICE: 174,261.00
S5
(TWO BEDROOM)
consists of a hallway, two bedrooms, a bathroom, a living room, an open-plan kitchen and dining room and a covered terrace with a total area of 66.63 m2.
This apartment has a garden of 9.62 m2.
PRICE: 179,713.00
S6
(TWO BEDROOM)
consists of a hallway, two bedrooms, a bathroom, a toilet, a living room, an open-plan kitchen and dining room and a loggia with a total area of 77.84 m2.
This residential unit can be made accessible to people with disabilities and reduced mobility.
PRICE 212,164
S7
(THREE BEDROOM)
consists of an entrance hallway, three bedrooms, a bathroom, a toilet, a living room, an open-plan kitchen and dining room and a covered terrace with a total area of 116.91 m2.
PRICE: 307,220.00
*GROUND FLOOR*
S8
(TWO BEDROOM)
consists of a hallway, two bedrooms, a bathroom, a living room, an open-plan kitchen and dining room and a covered terrace with a total area of 72.83 m2.
PRICE: 214,880.00
S9
(THREE-BEDROOM)
contains a hallway, three bedrooms, a bathroom, a toilet, a living room, an open-plan kitchen and dining room and a covered terrace with a total area of 93.63 m2.
PRICE: 253,560.00
S10
(TWO-BEDROOM)
contains a hallway, two bedrooms, a bathroom, a living room, an open-plan kitchen and dining room and a loggia with a total area of 92.22 m2.
PRICE: 271,424.00
S11
(TWO-BEDROOM)
contains a hallway, two bedrooms, a bathroom, a living room, an open-plan kitchen and dining room and a loggia with a total area of 91.80 m2.
PRICE: 269,792.00
S12
(TWO BEDROOM)
contains a hallway, two bedrooms, a bathroom, a living room, an open-plan kitchen and dining room and a covered terrace with a total area of 76.25 m2.
PRICE: 213,696.00
S13
(TWO BEDROOM)
contains a hallway, two bedrooms, a bathroom, a living room, an open-plan kitchen and dining room and a covered terrace with a total area of 79.64 m2.
PRICE: 238,432.00
S14
(THREE BEDROOM)
contains a hallway, three bedrooms, a bathroom, a toilet, a living room, an open-plan kitchen and dining room and a covered terrace with a total area of 117.34 m2.
PRICE: 308,473.00
*FIRST FLOOR*
S15
(TWO BEDROOM)
contains a hallway, two bedrooms, a bathroom, a living room, an open-plan kitchen and dining room and a covered terrace with a total area of 72.83 m2.
PRICE: 235,025.00
S16
(THREE BEDROOM)
contains a hallway, three bedrooms, a bathroom, a toilet, a living room, an open-plan kitchen and dining room and a covered terrace with a total area of 93.63 m2.
PRICE: 270,464.00
S17
(TWO BEDROOM)
contains a hallway, two bedrooms, a bathroom, a living room, an open-plan kitchen and dining room and a loggia with a total area of 92.22 m2.
PRICE: 296,870.00
S18
(TWO BEDROOM)
contains a hallway, two bedrooms, a bathroom, a living room, an open-plan kitchen and dining room and a loggia with a total area of 91.80 m2.
PRICE: 295,085.00
S19
(TWO BEDROOM)
contains a hallway, two bedrooms, a bathroom, a living room, an open-plan kitchen and dining room and a covered terrace with a total area of 76.25 m2.
PRICE: 233,730.00

S20
(TWO BEDROOM)
contains a hallway, two bedrooms, a bathroom, a living room, an open-plan kitchen and dining room and a covered terrace with a total area of 79.64 m2.
PRICE: 260,785.00
S21
(THREE BEDROOM)
contains a hallway, three bedrooms, a bathroom, a toilet, a living room, an open-plan kitchen and dining room and a covered terrace with a total area of 117.34 m2.
PRICE: 329,747.00
*SECOND FLOOR*
S22
(TWO BEDROOM)
contains a hallway, two bedrooms, a bathroom, a living room, an open-plan kitchen and dining room and a covered terrace with a total area of 72.83 m2, including a roof terrace with a floor area of 66.44 m2.
PRICE: 326,664.00
S23
(THREE-BEDROOM)
contains a hallway, three bedrooms, a bathroom, a toilet, a living room, an open-plan kitchen and dining room and a covered terrace with a total area of 93.63 m2.
PRICE: 295,820.00
S24
(TWO-BEDROOM)
contains a hallway, two bedrooms, a bathroom, a living room, an open-plan kitchen and dining room and a loggia with a total area of 92.22 m2, including a roof terrace with a floor area of 100.98 m2.
PRICE: 430,273.00
S25
(TWO BEDROOM)
contains a hallway, two bedrooms, a bathroom, a living room, an open-plan kitchen and dining room and a loggia with a total area of 91.80 m2, including a roof terrace with a floor area of 102.16 m2.
PRICE: 428,500.00
S26
(TWO BEDROOM)
contains a hallway, two bedrooms, a bathroom, a living room, an open-plan kitchen and dining room and a covered terrace with a total area of 76.25 m2, including a roof terrace with a floor area of 71.08 m2.
PRICE: 330,000.00
S27
(TWO BEDROOM)
contains a hallway, two bedrooms, a bathroom, a living room, an open-plan kitchen and dining room and a covered terrace with a total area of 79.64 m2, including a roof terrace with a floor area of 101.87 m2.
PRICE: 260,785.00
S28
(THREE BEDROOM)
contains a hallway, three bedrooms, a bathroom, a toilet, a living room, an open-plan kitchen and dining room and a covered terrace with a total area of 117.34 m2, including a roof terrace with a floor area of 102.90 m2.
PRICE: 436,00.00

All information about the property, as well as viewing it, is possible only with the signing of the Brokerage Agreement, which is the basis for further actions related to the purchase and sale of the property, and all in accordance with the Data Protection Act and the Act on Brokerage in Real Estate Transactions.
Features
Type
Apartment
Contract
Sale
Floor
Ground floor
Surface
65 m²
Rooms
2
Bathrooms
1
Price information
Price
€ 186,296
Price per m²
2,866 €/m²
Energy efficiency
  • Year of construction

    2025
  • Condition

    New / Under construction
  • Energy certification

    Not classifiable
Discover every corner of the property
+8
Additional options

Contact the advertiser

Or