map icon

3-room flat new, second floor, Okrug

Okrug
€ 440,000
3
97 m²
2
Yes

Note

Listing updated on 12/23/2025
Description

This description has been translated automatically and may not be accurate

reference: 3978-1

We are mediating the sale of a three-room penthouse in a new building in Čiovo, Okrug Gornji.
The construction of the building has started, and the planned completion and occupancy is expected in 11/2023. The building is positioned only 300 meters from the sea, so the apartments will have a view of the sea.
This is an excellent potential for investment in tourism given the attractive location. It is also suitable for family life because it provides housing in a natural environment, and within reach of all the necessary facilities for a higher level of quality of life.
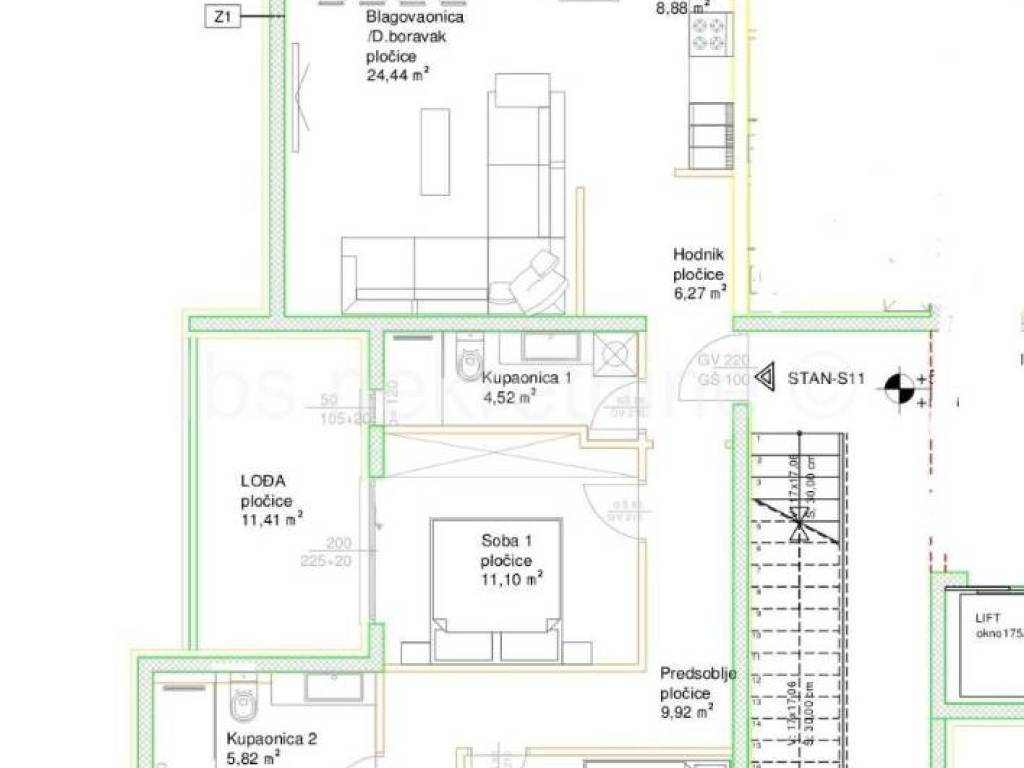
The building will have a total of 11 apartments on four floors: basement, ground floor, first floor and second floor.
Penthouses are located on the second floor and will include:
- corridor
- anteroom
- living room and dining room
- the kitchen
- three bedrooms
- two bathrooms
- terrace
- roof terrace
All apartments have their own parking space within the building.


S10 indoor space 71.94 m2 + balcony 13.64 m2 + roof terrace 73.7 m2-440,000 e

S11 indoor space 93.20 m2 + terrace 23.93 m2 + loggia 11.41 + roofInstagram terrace 93.58 m2-580,000e

Agency commission 3% + VAT.
All information about the property, as well as viewing it, is possible only with the signing of the Brokerage Agreement, which is the basis for further actions related to the purchase and sale of the property, and all in accordance with the Data Protection Act and the Act on Brokerage in Real Estate Transactions.
Features
Type
Apartment
Contract
Sale
Floor
2 floor
Lift
Yes
Surface
97 m²
Rooms
3
Air conditioning
Central, cold/hot
Other features
  • Security door
  • Pool
  • Video entryphone
Price information
Price
€ 440,000
Price per m²
4,536 €/m²
Energy efficiency
  • Condition

    New / Under construction
  • Air conditioner

    Central, cold/hot
  • Energy certification

    Not classifiable
Discover every corner of the property
+10
Additional options

Contact the advertiser

Or