map icon

3-room flat new, ground floor, Starigrad

Starigrad
€ 198,800
3
66 m²
1
G
Terrace

Note

Listing updated on 12/05/2025
Description

reference: 2519-2

NOVOGRADNJA 2025.

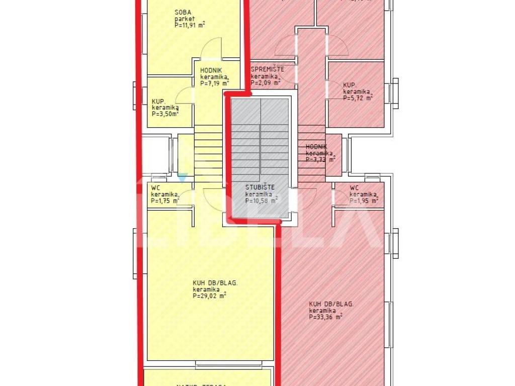
U prizemlju zgrade smjestio se manji apartman (S1) koji se sastoji od kuhinje sablagovaonicom i dnevnim boravkom, sobe, hodnika, kupaonice, toaleta i natkrivene terase. Istome pripada jedno vanjsko parkirno mjesto, a posebnost apartmana je privatno dvorište i vrt koji ga omeđuje.

Apartman se nalazi u slikovitom mjestu Reljani, samo 200 metara udaljenom od obale Jadranskog mora sa prekrasnim pogledom na isto.

Apartman je klimatiziran, te opremljen PVC prozorima sa ugrađenim komarnicima i roletama na električnu energiju.

Dokumentacija je uredna, objekt je završen i etažiran, te je u postupku ishođenje uporabne dozvole.Mogućnost kupovine i putem kredita.

Svim svojim kupcima osiguravamo BESPLATNO kreditno posredovanje u ishođenju stambenog kredita.

Za sve dodatne informacije kao i dogovor oko razgledavanja nazovite na broj 098/504-356 Ivica.




On the ground floor of the building, there is a smaller apartment (S1) consisting of a kitchen with a dining area and living room, one bedroom, hallway, bathroom, toilet, and a covered terrace. The apartment comes with one outdoor parking space, and a special feature is the private yard and garden that surrounds it.

The apartment is located in the picturesque village of Reljani, just 200 meters from the Adriatic Sea, offering a beautiful sea view.
The apartment is air-conditioned and equipped with PVC windows with built-in mosquito nets and electric shutters.

All documentation is in order; the building is completed and subdivided into separate units and is currently in the process of obtaining a usage permit. It is possible to purchase the property through a housing loan.

We offerFREE loan mediation servicesto all our clients in obtaining a mortgage.

For more information or to arrange a viewing, please call +38598/504-356 Ivica.




Im Erdgeschoss des Gebäudes befindet sich ein kleineres Apartment (S1), das aus einer Küche mit Essbereich und Wohnzimmer, einem Schlafzimmer, Flur, Badezimmer, WC und einer überdachten Terrasse besteht. Zum Apartment gehört ein Außenstellplatz, und ein besonderes Merkmal ist der private Garten und Hof, der die Wohnung umgibt.

Das Apartment befindet sich im malerischen Ort Reljani, nur 200 Meter von der Adriaküste entfernt und bietet einen wunderschönen Meerblick.
Die Wohnung ist klimatisiert und mit PVC-Fenstern mit integrierten Insektenschutzgittern und elektrischen Rollläden ausgestattet.

Die Dokumentation ist vollständig, das Gebäude ist fertiggestellt und parifiziert, und die Nutzungsbewilligung befindet sich im Beantragungsprozess. Ein Kauf über eine Wohnbaufinanzierung ist möglich.

Wir bieten unseren KundenKOSTENLOSE Kreditvermittlungbei der Beantragung eines Wohnkredits.

Für weitere Informationen oder zur Vereinbarung eines Besichtigungstermins rufen Sie bitte +38598/504-356 Ivica an.
If you want to know more, you can talk to Ivica Požgaj.
Features
Type
Apartment
Contract
Sale
Floor
Ground floor
Surface
66 m²
Rooms
3
Bedrooms
1
Bathrooms
1
Terrace
Yes
Air conditioning
Central, cold/hot
Other features
  • Security door
  • Video entryphone
Price information
Price
€ 198,800
Price per m²
3,012 €/m²
Energy efficiency
  • Year of construction

    2024
  • Condition

    New / Under construction
  • Air conditioner

    Central, cold/hot
  • Energy certification

    Not classifiable
Discover every corner of the property
+12
Advertiser
agent male

Ivica Požgaj

agency card
Additional options

Contact the advertiser

Or
agent male

Ivica Požgaj