map icon

Shop - Commercial property for Sale

Rovinj
€ 3,024,000
5+
1,472 m²

Note

Listing updated on 12/05/2025
Description

This description has been translated automatically and may not be accurate

reference: 14778-1

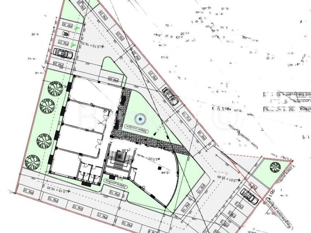
www.biliskov.com ID: 14778RovinjCommercial building with a total gross area of 1472.10 m and a net area of 1260.41 m, consisting of three above-ground floors and one underground floor, situated on a 1683 m plot with 30 parking spaces. Suitable for various service activities. The building is in a high-level shell construction state.
The commercial building is located in a highly attractive Economic Zone in the beautiful town of Rovinj, close to all amenities, just 900 meters from the beach and the town center.
The premises can accommodate various uses, including but not limited to: a polyclinic with specialist offices, a medical center for physical and orthopedic diagnostics and therapy, a sports and recreational center, law offices, design studios, travel and tourism agencies, real estate agencies, offices of domestic and foreign companies, banks, office spaces, insurance companies, hostels, tourist apartments, a senior citizens home, retail shops, and other service activities. The building can also be converted into a residential or mixed-use building, with the potential to transform the 15 business spaces into 15 apartments of various sizes.
Individual parking spaces can be purchased for 5,500 each.
Price: 3,024,000Agency commission: 2% + VAT of the achieved sale price.
If you want to know more, you can talk to Vedran Petrović.
Features
Contract
Sale
Surface
1,472 m²
Rooms
5+ rooms
Price information
Price
€ 3,024,000
Price per m²
2,054 €/m²
Energy efficiency
  • Year of construction

    2022
  • Energy certification

    Not classifiable
Discover every corner of the property
+5
Additional options

Contact the advertiser

Or