2-room flat excellent condition, ground floor, Matulji

€ 202,700
2
72 m²
G

Note

Listing updated on 11/13/2025
Description

This description has been translated automatically and may not be accurate

reference: 37738-1

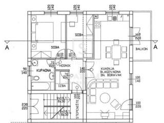
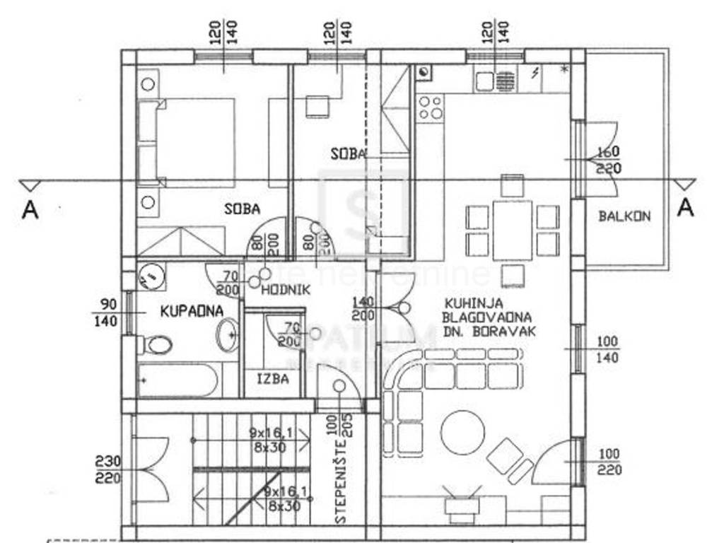
Matulji, Permani - apartment for sale in a new building!
We mediate in the sale of an apartment in Permani. It consists of a hallway, living room with dining room and kitchen, bathroom, pantry, two bedrooms and a balcony.The apartment has one parking space.
In the current phase, it is possible to choose floor coverings, sanitary ware, etc.Deadline for moving in is at the end of 2025

The agency commission is charged in accordance with the General Terms and Conditions available on the website www.elite-nekretnine.hr/opci-uvjeti-poslovanja.
Features
Type
Apartment
Contract
Sale
Floor
Ground floor
Surface
72 m²
Rooms
2
Bedrooms
2
Price information
Price
€ 202,700
Price per m²
2,815 €/m²
Energy efficiency
  • Year of construction

    2025
  • Condition

    Excellent / Refurbished
  • Energy certification

    Not classifiable
Additional options

Contact the advertiser

Or