map icon

Single-family detached house 173 m², to be refurbished, Matulji

Matulji
€ 186,000
5+
173 m²

Note

Listing updated on 03/20/2026
Description

This description has been translated automatically and may not be accurate

reference: 37626-1

Matulji - sale of a detached house in a great location!
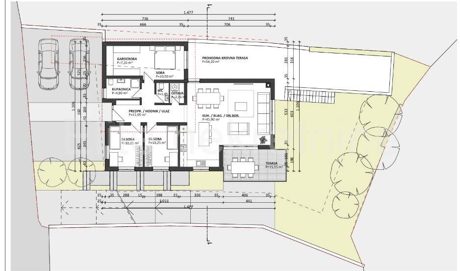
We mediate in the sale of antiques in an excellent location in Matulji. The house requires a complete adaptation, however, it also has a project and a building permit for the construction of a P+1 house, so it is possible to start work immediately. It has all paid utilities (electricity, water, utilities). It is possible to buy more land next to the house.

The agency commission is charged in accordance with the General Terms and Conditions available on the website www.elite-nekretnine.hr/opci-uvjeti-poslovanja.
Features
Type
Single-family detached house
Contract
Sale
Floor
Ground floor
Surface
173 m²
Rooms
5+
Bedrooms
4
Price information
Price
€ 186,000
Price per m²
1,075 €/m²
Energy efficiency
  • Year of construction

    1940
  • Condition

    To be refurbished
  • Energy certification

    Not classifiable
Discover every corner of the property
+3
Additional options

Contact the advertiser

Or