map icon

Shop - Commercial property for Sale

Rovinj
€ 3,024,984
1,260 m²
G

Note

Listing updated on 11/13/2025
Description

This description has been translated automatically and may not be accurate

reference: 15556-1

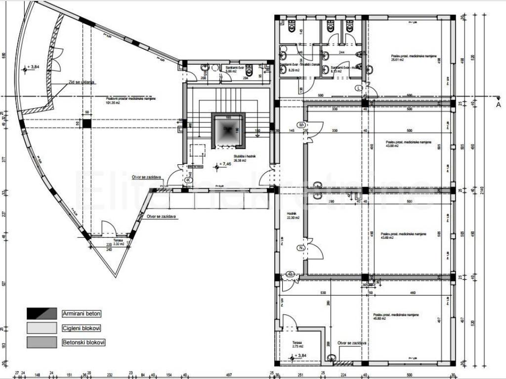
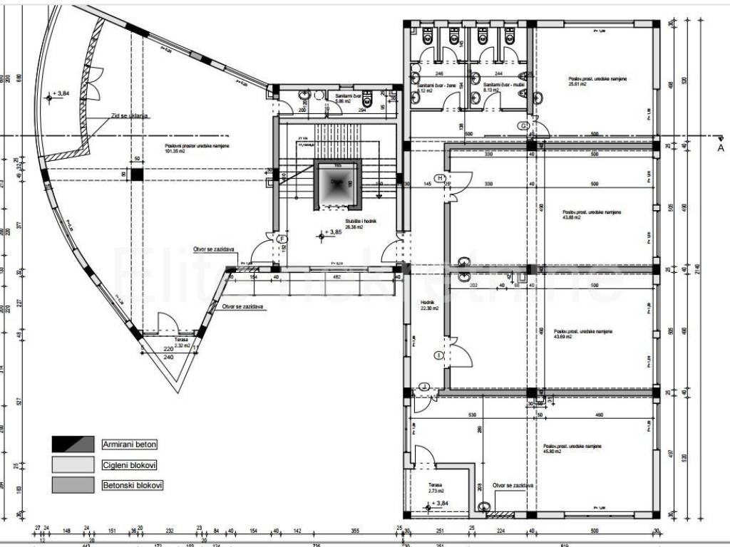
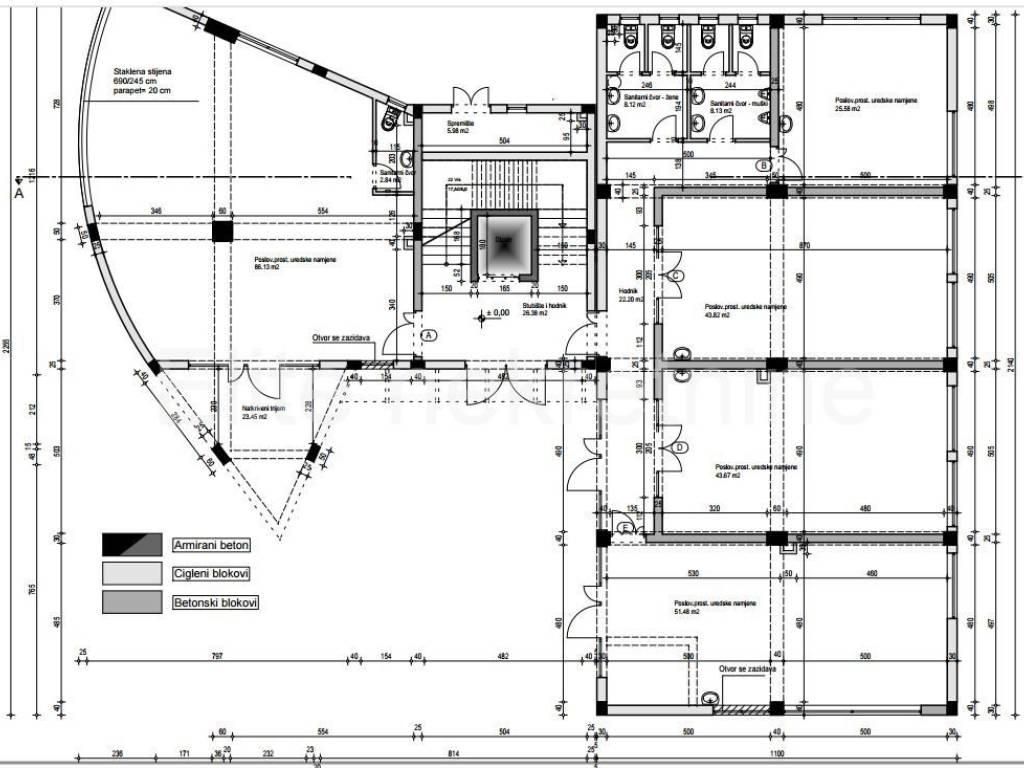
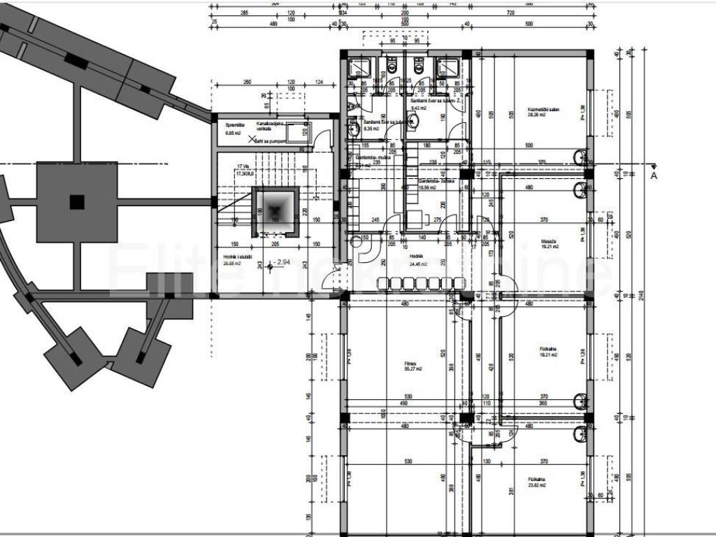
Rovinj - sale of an elite office building in Rovinj, located in a top location, not far from the city center of Rovinj
The office building PO + PR + 2, net area of 1260 m2 is located in a very attractive Economic Zone, surrounded by beautiful nature and the benefits of the Mediterranean atmosphere, close to all supporting facilities, only 900 m from the beach and the center of Rovinj.
In the aforementioned office building, it is possible to represent the following facilities:- Polyclinic with various specialist clinics, Sports and recreation center, wellness, fitness, various service salons,design offices, tourist and real estate agencies, representative offices of domestic and foreign companies, banks, office space, insurance companies, Hotel, Apart-Hotel, tourist apartments, Home for the elderly and disabled, shopping and other service facilities, cafe-bar, restaurant, etc.
The aforementioned Business Building can be converted into a Residential Building or a Residential-Business Building and 15 business premises, converted into 15 apartments/flats, of various
square meters, and it is also possible to convert the underground floor of 240 m2, for housing with defined spaces of various square meters, from approx. 25 m, 50 m and 100 m, up to a total of 339 m net area, per floor.
All utility contributions, water contributions, and other fees have been paid, and according to the expressed interest of the buyer, a use permit can be subsequently obtained for performing any of the previously mentioned service activities.
Documentation and ownership in order!
Direct contact with the agent: Sandra B. +385912503331E-mail: sandra.elitenekretnine@gmail.com
The agency commission is charged in accordance with the General Terms and Conditionswhich are available atpage www.elite-nekretnine.hr/opci-uvjeti-poslovanja.
Features
Contract
Sale
Surface
1,260 m² | commercial 2,943 m²
Floor
Ground floor
Surface detail

Other

Floor
Ground floor
Surface
1,260.0 m²
Coefficient
100%
Surface type
Main
Commercial area
1,260.0 m²

Other

Floor
Ground floor
Surface
1,683.0 m²
Coefficient
100%
Surface type
Accessory
Commercial area
1,683.0 m²
Price information
Price
€ 3,024,984
Price per m²
1,028 €/m²
Energy efficiency
  • Condition

    To be refurbished
  • Energy certification

    Not classifiable
Discover every corner of the property
+6
Additional options

Contact the advertiser

Or