map icon

4-room flat new, first floor, Kostrena

Kostrena
€ 770,000
4
147 m²
2
1
Cellar

Note

Listing updated on 11/17/2025
Description

This description has been translated automatically and may not be accurate

reference: 6770

Flat Kostrena,

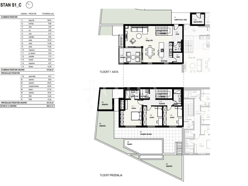
We are selling a luxurious two-storey apartment with a total area of 147 m in a green and quiet part of Kostrena. The apartment is located in a new building with a beautiful sea view and includes a private pool, terraces, a landscaped garden and top-notch technical equipment.

The apartment consists of:
- living room and dining room with kitchen
- three bedrooms, wardrobe, cellar, pantry
- two bathrooms, two additional toilets, hallway and terrace

The apartment includes the following associated spaces:
- private pool
- two terraces and a landscaped garden
- two outdoor parking spaces
- storage room (8 m)

The property is equipped with:
- underfloor heating via heat pump
- air conditioning
- aluminum joinery
- security doors and top-quality finishing materials

It is sold on a turnkey basis, without furniture. The seller is VAT registered.

ID CODE: 6770

Stjepan Vrsalović, mag.oec.
Agent s licencom
Mob: 0914848887
Tel: 051403771
E-mail: stjepan@joda-nekretnine.hr
www.joda-nekretnine.hr
If you want to know more, you can talk to Stjepan Vrsalović, mag.oec..
Features
Type
Apartment
Contract
Sale
Floor
1
Surface
147 m² | commercial 298 m²
Rooms
4
Bedrooms
3
Bathrooms
2
Balcony
No
Terrace
No
Air conditioning
Independent, cold/hot
Surface detail

Residential

Floor
1
Surface
147.0 m²
Coefficient
100%
Surface type
Main
Commercial area
147.0 m²

Land

Floor
Ground floor
Surface
151.0 m²
Coefficient
100%
Surface type
Accessory
Commercial area
151.0 m²
Price information
Price
€ 770,000
Price per m²
2,584 €/m²
Energy efficiency
  • Year of construction

    2026
  • Condition

    New / Under construction
  • Air conditioner

    Independent, cold/hot
  • Energy certification

    Exempt
Discover every corner of the property
+6
Advertiser
agent male

Stjepan Vrsalović, mag.oec.

agency card
Additional options

Contact the advertiser

Or
agent male

Stjepan Vrsalović, mag.oec.