map icon

Single-family detached house 245 m², new, Kostrena

Kostrena
€ 950,000
5
245 m²
3
Terrace
Furnished

Note

Listing updated on 11/17/2025
Description

This description has been translated automatically and may not be accurate

reference: 14137

KOSTRENA, semi-detached villa with pool and sea view, under construction

KOSTRENA, For sale is a semi-detached villa with a swimming pool under construction, in an excellent quiet location with an open sea view.

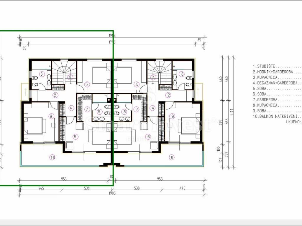
The villa with an area of 245.65 m2 consists of a basement (garage), ground floor and first floor, and has a total of 4 bedrooms and 3 bathrooms.

On the ground floor there is an entrance porch and staircase, hall, bathroom, study/guest room, living room with kitchen and dining room and exit to the covered terrace. On the first floor there is a hallway, a master bedroom with its own bathroom and walk-in wardrobe, two more bedrooms with a shared bathroom, and a covered balcony.

Construction has started, until 01.07. before the work ban, the first floor will be finished, construction will continue in the 9th month. It is being built by a reliable investor who is also a contractor with over 40 years of experience in construction. Estimated completion date in the summer of 2024.

The villa is surrounded by a garden of approx. 100 m2 where there will be a swimming pool, green areas and a parking lot.

It is possible to buy both villas.

A beautiful and quiet location along a side road with little traffic, with an open view of the sea, there are new houses in the neighborhood. The sea and beautiful beaches can be reached in just a few minutes by car.

For more information and a tour, call +385/99/320-0008

ID CODE: 14137

Agencija Opatija
Ovlašteni posrednik
Mob: +385/99/320-0008
E-mail: office@smart-invest.hr
www.smart-invest.hr
If you want to know more, you can talk to Agencija Opatija.
Features
Type
Single-family detached house
Contract
Sale
Floor
1
Surface
245 m² | commercial 345 m²
Rooms
5
Bedrooms
4
Bathrooms
3
Furnished
Yes
Balcony
No
Terrace
Yes
Other features
  • Pool
Surface detail

Residential

Floor
1
Surface
245.0 m²
Coefficient
100%
Surface type
Main
Commercial area
245.0 m²

Land

Floor
Ground floor
Surface
100.0 m²
Coefficient
100%
Surface type
Accessory
Commercial area
100.0 m²
Price information
Price
€ 950,000
Price per m²
2,754 €/m²
Energy efficiency
  • Year of construction

    2024
  • Condition

    New / Under construction
  • Energy certification

    Exempt
Discover every corner of the property
+9
Additional options

Contact the advertiser

Or