map icon

3-room flat new, ground floor, Tar-Vabriga

Tar-Vabriga
€ 315,463
3
66 m²
1
1
Yes
Terrace
Furnished

Note

Listing updated on 11/17/2025
Description

This description has been translated automatically and may not be accurate

reference: 14013

ISTRIA - VABRIGA, 2-bedrooms apartment with garden near the sea (V1-A)

ISTRIA - POREČ - VABRIGA, For sale is a comfortable apartment, 2 bedrooms + living room, with a garden of 206.70 m2, in a new building with an elevator on an attractive location near the sea - only 10 minutes' walk to the nearest beach!

The modern building is built by a reliable investor with many years of experience and a reference list in residential construction.

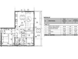
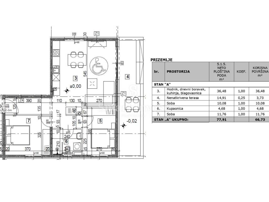
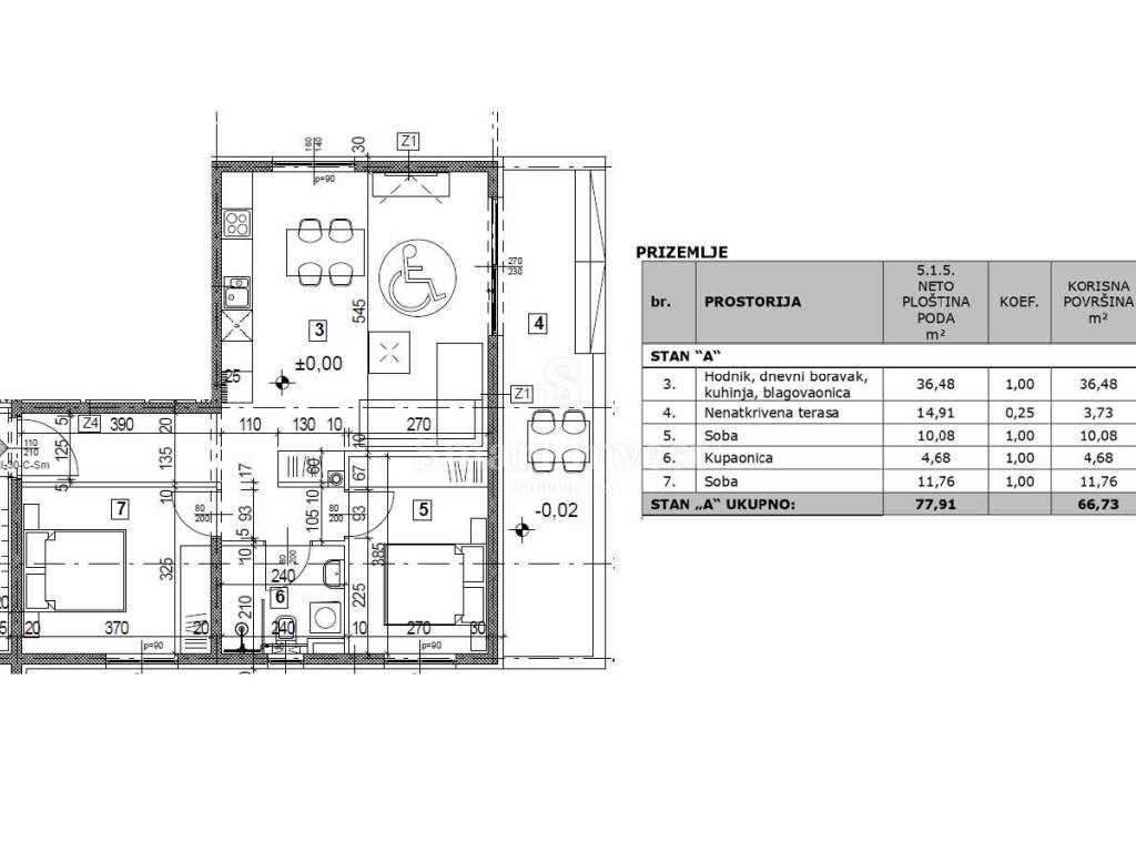
APARTMENT A with a net usable area of 66.73 m2 and a garden of 206.70 m2 is situated on the ground floor and adapted to the needs of people with limited mobility. It consists of a living room with kitchen and dining area, 2 bedrooms, bathroom, and an uncovered terrace of 14.91 m2 (coefficient 0.25=3.73 m2). The apartment also has a garden of 206.70 m2, a storage room of 2.3 m2 and a parking space of 12.48 m2, which makes the total area of the apartment and accessories 91.67 m2.

The apartments will be equipped with heating/cooling via heat pump air conditioning and underfloor heating in the bathrooms, and the building will have an ETICS facade and an elevator.

Very attractive location near all daily amenities, just 10 minutes' walk to the nearest beach and 10 minutes' drive to the center of Poreč.

*The stated price refers to a completely finished apartment on a turnkey basis, without furniture. The price includes 25% VAT, the buyer doesnt pay the real estate transfer tax. In case of buying on a legal entity registered in Croatia it is possible to refund full VAT after the purchase.

For more information and a viewing appointment call: +385/91/320-0021

ID CODE: 14013

Katarina Žiganto
Agent s licencom
Mob: +385/91/3200021
E-mail: katarina@smart-invest.hr
www.smart-invest.hr
If you want to know more, you can talk to Katarina Žiganto.
Features
Type
Apartment
Contract
Sale
Floor
1
Lift
Yes
Surface
66 m² | commercial 272 m²
Rooms
3
Bedrooms
2
Bathrooms
1
Furnished
Yes
Balcony
No
Terrace
Yes
Air conditioning
Independent, cold/hot
Other features
  • Security door
Surface detail

Residential

Floor
1
Surface
66.0 m²
Coefficient
100%
Surface type
Main
Commercial area
66.0 m²

Land

Floor
Ground floor
Surface
206.0 m²
Coefficient
100%
Surface type
Accessory
Commercial area
206.0 m²
Price information
Price
€ 315,463
Price per m²
1,160 €/m²
Energy efficiency
  • Year of construction

    2024
  • Condition

    New / Under construction
  • Air conditioner

    Independent, cold/hot
  • Energy certification

    Exempt
Discover every corner of the property
+6
Additional options

Contact the advertiser

Or