Single-family detached house 93 m², new, Sveti Lovreč

€ 350,000
4
93 m²
2

Note

Listing updated on 02/05/2026
Description

This description has been translated automatically and may not be accurate

reference: 42700

ISTRIA, SVETI LOVREČ - Semi-detached house with swimming pool

ISTRIA, SVETI LOVREČ - Semi-detached house with swimming pool

On a hill with a beautiful view of gentle fields, vineyards, olive groves and the sea in the distance, Sveti Lovreč is located. Sveti Lovreč is located amidst lush lavender fields in the western part of the Istrian peninsula, in the immediate hinterland of Vrsar, Poreč and Rovinj and is one of the best preserved medieval fortified towns in Istria.
The location of the town on a gentle hill that dominates the area where as many as 22 settlements, villages and hamlets are scattered speaks of its significant role throughout history.
Along the gently indented western coast of Istria, several deep bays stand out, of which Lim Bay is partly part of the Municipality of Sveti Lovreč. Lim Bay is a natural phenomenon of great scientific and aesthetic value; it has been declared a special marine reserve.

In a gentle neighborhood near Sveti Lovreč, a semi-detached house with a swimming pool is for sale.
The microlocation offers an authentic experience of a small Istrian town, intimacy, relief from every hectic effort and a break from noise, while also being close enough to dynamic Istrian cities with a range of amenities.
In addition to a convenient location, the property is also characterized by the quality of construction, which guarantees long-term satisfaction and quality of living.
The house of timeless architecture fits into the settlement and landscape in terms of form and color and is designed as one residential unit that extends over one floor.
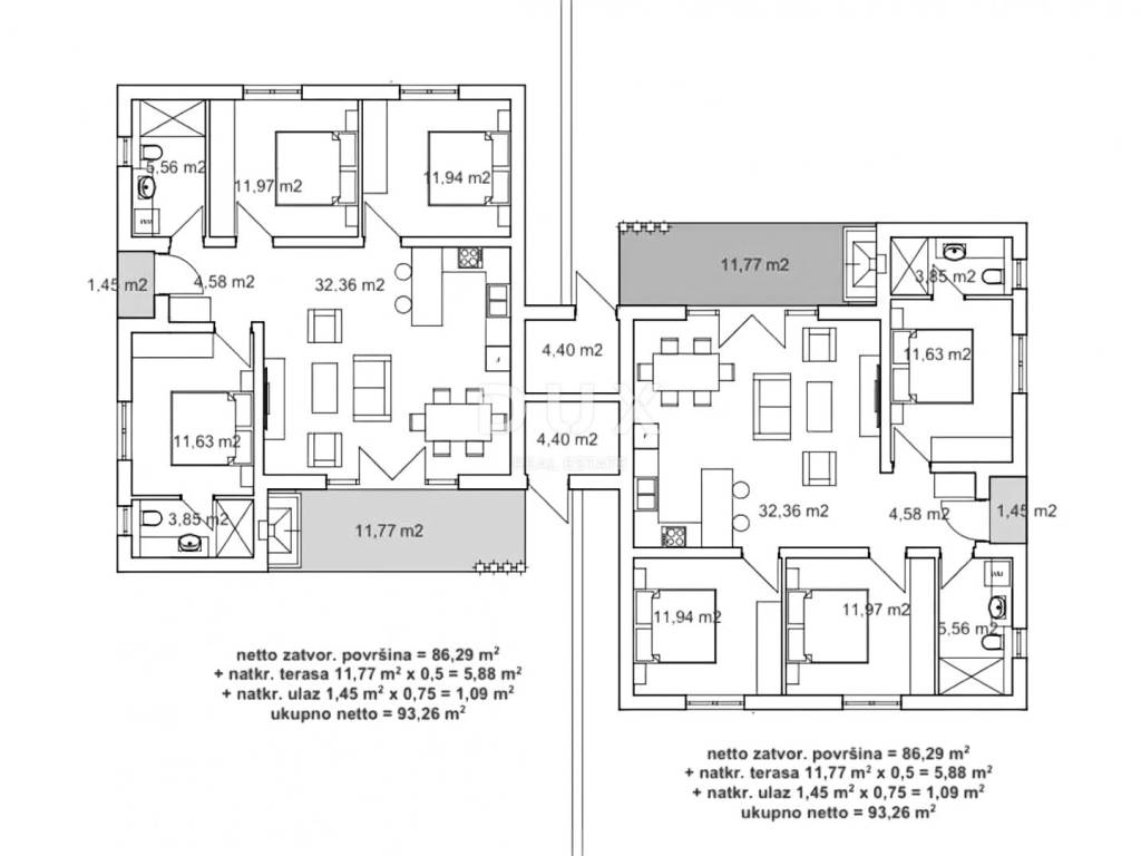
It consists of an open-concept space that unites the kitchen, dining room and living room with access to a covered terrace, three bedrooms, two bathrooms and storage.
The yard is ambientally and horticulturally decorated and fenced and contains a swimming pool with a sunbathing area.

The excellent location and spatial organization of the interior and exterior of this property provide an opportunity for a comfortable family life or investment in a tourist rental business.

The listed price of the property refers to the final degree of completion without furniture, which allows for final decoration according to your own wishes and preferences.

Dear clients, the agency commission is charged in accordance with the General Terms and Conditions:
www.dux-nekretnine.hr/opci-uvjeti-poslovanja

ID CODE: 42700

Iva Zajc
Agent s licencom
Mob: +385 92 235 9472
Tel: +385 91 480 8808
E-mail: iva@dux-istra.com
www.dux-istra.com
If you want to know more, you can talk to Iva Zajc.
Features
Type
Single-family detached house
Contract
Sale
Floor
1
Surface
93 m² | commercial 593 m²
Rooms
4
Bedrooms
3
Bathrooms
2
Balcony
No
Terrace
No
Air conditioning
Independent, cold/hot
Other features
  • Pool
Surface detail

Residential

Floor
1
Surface
93.0 m²
Coefficient
100%
Surface type
Main
Commercial area
93.0 m²

Land

Floor
Ground floor
Surface
500.0 m²
Coefficient
100%
Surface type
Accessory
Commercial area
500.0 m²
Price information
Price
€ 350,000
Price per m²
590 €/m²
Energy efficiency
  • Year of construction

    2026
  • Condition

    New / Under construction
  • Air conditioner

    Independent, cold/hot
  • Energy certification

    Exempt
Discover every corner of the property
+4
Additional options

Contact the advertiser

Or