3-room flat new, Ražanac

€ 298,991
3
77 m²
1
Yes
Terrace

Note

Listing updated on 05/02/2026
Description

This description has been translated automatically and may not be accurate

reference: 41103

ZADAR, RAŽANAC - New building! Underfloor heating, elevator, sea view, storage room...! S6

ZADAR, RAŽANAC - New construction! Underfloor heating, elevator, sea view, storage room...! S6

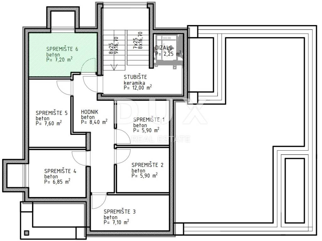
For sale are top-quality apartments in a new building located in a quiet and picturesque place of Ražanac, ideal for living, vacation or investment. The building has a total of six modernly designed apartments, each with its own storage room in the basement and its own parking space. They are only 320 meters away from the pebble beach with a view of Velebit. The building is equipped with an elevator, and all apartments have underfloor heating throughout, which guarantees a pleasant temperature throughout the year. Each unit also has built-in air conditioning in all rooms, which further contributes to comfort. Apartment S6 on the second floor offers the perfect combination of functionality and comfort it consists of two bedrooms, a modern bathroom, an additional toilet, a spacious living room with a kitchen and dining room, a covered terrace and an additional roof terrace with a beautiful view of the sea. The planned completion is by the end of 2025. Ražanac is a charming Dalmatian town that combines peace, nature and traditional Mediterranean spirit. Its beaches are known for their exceptional cleanliness and spectacular views of the mighty Velebit, creating breathtaking scenes. It is ideal for anyone looking for an escape from the hustle and bustle of everyday life and want to enjoy an authentic coastal ambiance. For more information or a viewing, please feel free to contact us - the apartments are ready to move in, and this opportunity rarely comes along.

Dear clients, the agency commission is charged in accordance with the General Terms and Conditions www.dux-nekretnine.hr/opci-uvjeti-poslovanja

ID CODE: 41103

Josip Šestan
Agent s licencom
Mob: +385 91 799 6986
Tel: +385 91 480 8808
E-mail: josip@dux-dalmacija.com
www.dux-dalmacija.com
If you want to know more, you can talk to Josip Šestan.
Features
Type
Apartment
Contract
Sale
Lift
Yes
Surface
77 m²
Rooms
3
Bedrooms
2
Bathrooms
1
Balcony
No
Terrace
Yes
Air conditioning
Independent, cold/hot
Price information
Price
€ 298,991
Price per m²
3,883 €/m²
Energy efficiency
  • Year of construction

    2025
  • Condition

    New / Under construction
  • Air conditioner

    Independent, cold/hot
  • Energy certification

    Exempt
Discover every corner of the property
+23
Additional options

Contact the advertiser

Or